Exclusiva villa de obra nueva con piscina y solárium privados en una tranquila zona de Ciudad Quesada, Alicante, Costa Blanca.

740.000€

Características

Habitaciones: 3
Baños: 4
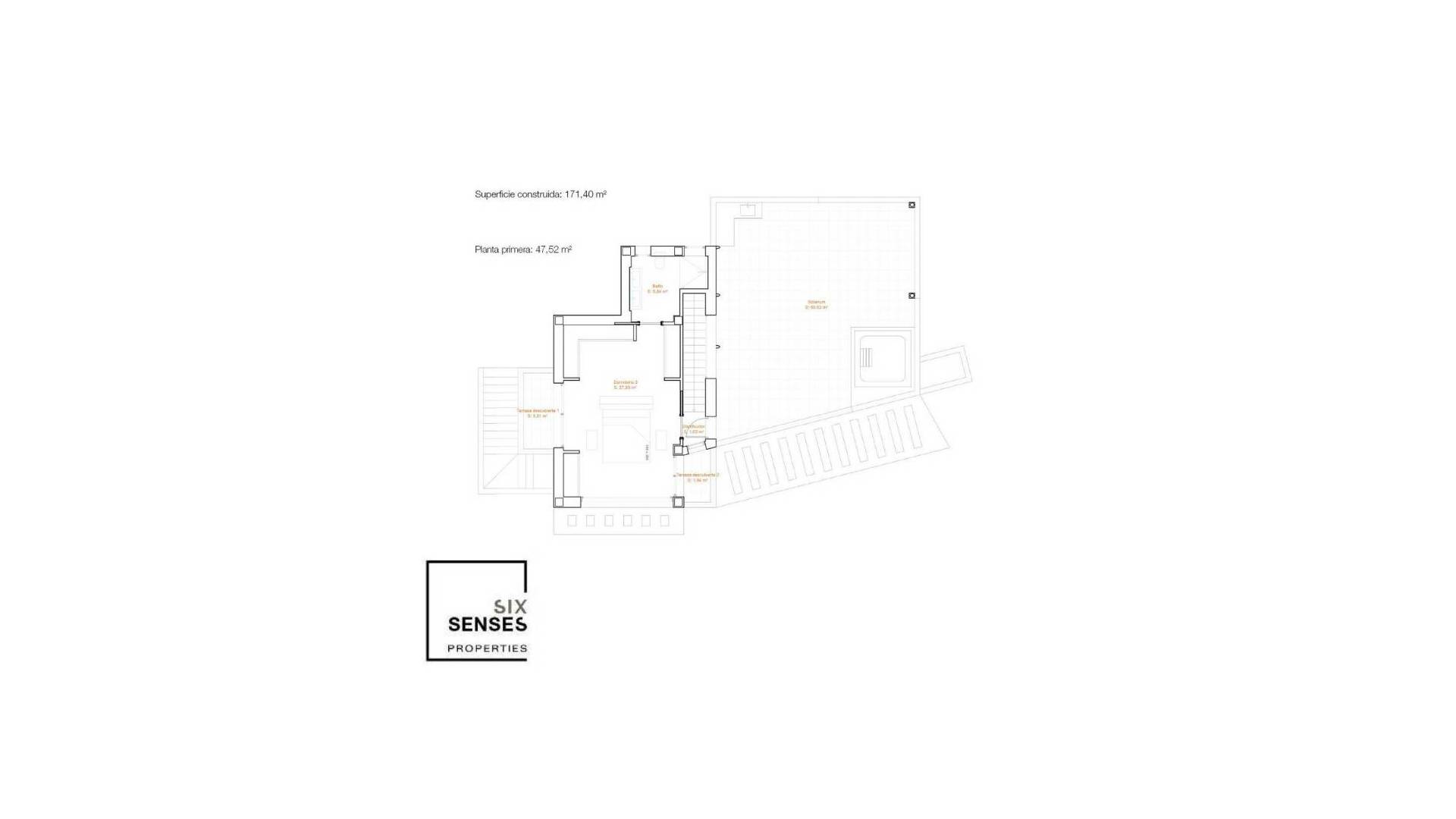
Superficie: 174m2
Parcela: 550m2
Piscina:
Parking: Privado
Regalo 6800 €
Plazas de garaje: 1
Cocinas: Abierta
Estado: 08 Proyecto
Armarios empotrados: 3
Distancia a la playa: 6 Km.
Distancia al aereopuerto: 30 Km.
Distancia a ocio: 3 Km.
Distancia al campo de golf: 6 Km.
Balcón
Portero Automático
Terraza
Solarium
Salida de humos
Electricidad
Puerta Blindada
08 Proyecto
Jardín
Calificación energética
Calificación energéticaEn proceso

Descripción

Six Seconds Properties presenta esta exclusiva villa independiente de calidad superior con una reluciente piscina y un jacuzzi, ubicada en Ciudad Quesada, Alicante. 

Con una superficie construida de 170 m² sobre una parcela de 500 m², esta propiedad ofrece un diseño exclusivo con amplias zonas exteriores, incluyendo una piscina y un jardín perfectamente cuidado. La villa se distribuye en 3 amplios dormitorios, 4 baños, y una gran cocina abierta totalmente amueblada y equipada, además de contar con un lavadero adicional para mayor comodidad.

Esta villa destaca por sus características de alta gama, como el aislamiento térmico y acústico, preinstalación de aire acondicionado, triple vidrio de seguridad Climalit y suelo radiante en los baños. Cada material utilizado ha sido seleccionado para garantizar la máxima calidad y confort en toda la vivienda.

En el exterior, los propietarios disfrutarán de una encantadora piscina con jacuzzi, rodeada de espacios verdes con césped artificial, ideal para aprovechar el sol Mediterráneo durante todo el año.

Ubicada en una zona privilegiada, esta villa se encuentra cerca de playas, cafeterías, restaurantes y un centro comercial, ofreciendo una combinación perfecta de lujo y comodidad.

¡Contáctanos para más detalles o para programar una visita a esta espectacular propiedad!

Clima:

El clima en la Costa Blanca, a menudo considerado como el mejor de Europa, hace posible un estilo de vida muy sociable y saludable,  al aire libre, marcado por completas instalaciones deportivas y de ocio, con ciudades turísticas, excitantes y cosmopolitas, que destacan por la prestación de servicios máxima categoría, algunos de ellos exclusivos, considerados de auténtico lujo. Todos ellos destinados a un cliente exigente, que busca calidad y cercanía.

La Costa Blanca cuenta con más de 300 días de sol al año. Un paraíso con excelentes conexiones a toda Europa. El Aeropuerto de Alicante-Elche cuenta con unas modernas instalaciones y con un fácil y cómodo acceso desde cualquier punto de la provincia.

Entorno:

La Costa Blanca sigue atrayendo a personas de toda Europa, y de otros lugares del mundo,  porque ofrece una calidad de vida única en un hermoso entorno a orillas del mar Mediterráneo, rodeado de montañas y de una exuberante vegetación.

Además de los campos de golf y los puertos deportivos que podrás disfrutar por toda la costa, la zona también ofrece la posibilidad de esquiar en la cercana Sierra Nevada, Javalambre o Valdelinares, unos paraísos para amantes de los deportes de invierno, con hermosos paisajes naturales. La Costa Blanca ofrece un estilo de vida singularmente rico, donde las mejores playas y calas del Mediterráneo se combinan con un interior repleto de montañas y pueblos que esconden cultura y monumentos históricos únicos en el mundo.

Tenemos un regalo para ti:

En Six Seconds Properties te ayudamos a convertir tu nueva propiedad en la casa de tus sueños, regalándote un cheque regalo en mobiliario por una cantidad de 6.800€  y una visita técnica de la vivienda, donde nuestro equipo técnico te aconsejará sobre las posibilidades de mejora de la vivienda. Totalmente gratis!!

En Six Seconds Properties creemos que tu confianza merece un trato excepcional. Estaremos a tu lado siempre que nos necesites.

IMPORTANTE!!

Recuerda que nuestros servicios NO incrementan NUNCA el precio final  de la vivienda a nuestros clientes. Nuestra experiencia en el sector nos convertirá en tu aliado, un asesor de confianza que te ayudará a elegir la casa de tus sueños en la mejor zona, informarte sobre el precio de mercado de los inmuebles en los que estás interesado, las calidades empleadas...todo la información imprescindible y objetiva para que tu experiencia sea totalmente satisfactoria.

 Six Seconds Properties pertenece a un grupo  de empresas consolidadas y especializadas todas ellas en el sector del hogar; arquitectura, interiorismo, mobiliario, asesoramiento en la compra venta de bienes raíces etc... Estos recursos propios nos permiten ofrecer unos servicios únicos y exclusivos a nuestros clientes.

Six Seconds Properties es una agencia moderna, sensible con las nuevas tecnologías y oportunidades de mercado. Por ello también somos pioneros en ofrecerte la posibilidad de realizar transacciones inmobiliarias seguras y transparentes con criptomonedas.


 

Localización

Planos

Vídeos

Finanzas

Esta información que se proporciona aquí está sujeta a errores y no forma parte de ningún contrato. La oferta se puede cambiar o retirar sin previo aviso. Los precios no incluyen los costes de compra

Calcular hipoteca
Cambio de divisas
  • Libras: 641.025 GBP
  • Franco Suizo: 680.060 CHF
  • Yuan Chino: 5.913.340 CNY
  • Dolar: 865.948 USD
  • Corona Sueca: 8.033.070 SEK
  • Corona Noruega: 8.075.102 NOK
  • Corona checa: 18.030.840 CZK

Solicitar información

Responsable del tratamiento: Six Seconds Properties SL, Finalidad del tratamiento: Gestión y control de los servicios ofrecidos a través de la página Web de Servicios inmobiliarios, Envío de información a traves de newsletter y otros, Legitimación: Por consentimiento, Destinatarios: No se cederan los datos, salvo para elaborar contabilidad, Derechos de las personas interesadas: Acceder, rectificar y suprimir los datos, solicitar la portabilidad de los mismos, oponerse altratamiento y solicitar la limitación de éste, Procedencia de los datos: El Propio interesado, Información Adicional: Puede consultarse la información adicional y detallada sobre protección de datos Aquí.
Contacto WhatsApp