Fantástica villa adosada en una planta con solarium con cocina y piscina privada cerca de campo de golf en Roldan, Murcia

Desde 239.500€

Características

Habitaciones: 2
Baños: 2
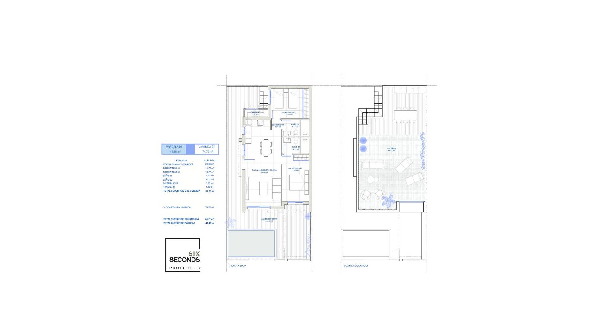
Superficie: 75m2
Parcela: 141m2
Piscina:
Parking: Privado
Regalo  
Plazas de garaje: 1
Cocinas: Abierta
Estado: 10 Final 2º semestre de 2026
Armarios empotrados: 2
Orientación: Este
Distancia a la playa: 18 Mins.
Distancia al aereopuerto: 13 Mins.
Distancia a ocio: 1 Km.
Distancia al campo de golf: 5 Km.
Garaje
Trastero
Terraza
Solarium
10 Final 2º semestre de 2026
Calificación energética
Calificación energéticaEn proceso

Descripción

Descubre este nuevo proyecto de 11 villas exclusivas en la tranquila localidad de Roldán, Torre Pacheco (Murcia), un lugar donde la agricultura, la serenidad y el ambiente tradicional español se combinan para ofrecer un entorno de vida inigualable. Su ubicación es ideal, a solo 20 minutos del aeropuerto de Murcia y a 30 minutos de las ciudades de Cartagena y Murcia.

Estas modernas villas han sido diseñadas para ofrecer confort y funcionalidad, convirtiéndolas en la opción perfecta para disfrutar de vacaciones inolvidables con familiares y amigos. Disponibles en opciones de 2 o 3 dormitorios y 2 baños, cada propiedad cuenta con jardín privado, zona de parking, magnífico solárium y una encantadora piscina privada. Dependiendo del modelo elegido, las viviendas tienen dimensiones de entre 74,72 m² y 85 m², con parcelas que oscilan entre 140 m² y 159 m², mientras que las piscinas privadas tendrán unas dimensiones aproximadas de 4,5 m x 2,5 m.

Las cocinas destacan por su diseño contemporáneo en blanco combinado con acabados en imitación madera, e incluyen electrodomésticos de alta gama, como frigorífico, horno, lavavajillas integrado, vitrocerámica y campana extractora.

Los baños se entregan completamente equipados, con muebles de baño, espejo, iluminación y mampara de ducha. Además, el solárium cuenta con una cocina de verano, perfecta para disfrutar de barbacoas bajo el sol mediterráneo.

Si buscas una villa moderna, funcional y con un precio atractivo, esta es tu oportunidad. Contáctanos para más información o para agendar una visita!!

Clima: 

El clima en la Costa Cálida, a menudo considerado como el mejor de Europa, hace posible un estilo de vida muy sociable y saludable, al aire libre, marcado por completas instalaciones deportivas y de ocio, con ciudades turísticas, excitantes y cosmopolitas, que destacan por la prestación de servicios máxima categoría, algunos de ellos exclusivos, considerados de auténtico lujo. Todos ellos destinados a un cliente exigente, que busca calidad y cercanía.  

La Costa Cálida cuenta con más de 300 días de sol al año. Un paraíso con excelentes conexiones a toda Europa. 

Entorno:

La Costa Cálida sigue atrayendo a personas de toda Europa, y de otros lugares del mundo,  porque ofrece una calidad de vida única en un hermoso entorno a orillas del mar Mediterráneo, rodeado de montañas y de una exuberante vegetación.

Además de los campos de golf y los puertos deportivos que podrás disfrutar por toda la costa, la zona también ofrece la posibilidad de esquiar en la cercana Sierra Nevada, Javalambre o Valdelinares, unos  paraísos para amantes de los deportes de invierno, con hermosos paisajes naturales. La Costa Cálida ofrece un estilo de vida singularmente rico, donde las mejores playas y calas del Mediterráneo se combinan con un interior repleto de montañas y pueblos que esconden cultura y monumentos históricos únicos en el mundo.

Tenemos un regalo para ti: 

En Six Seconds Properties te ayudamos a convertir tu nueva propiedad en la casa de tus sueños, regalándote un cheque regalo en mobiliario y una visita técnica de la vivienda, donde nuestro equipo técnico te aconsejará sobre las posibilidades de mejora de la vivienda. Totalmente gratis!! 

En Six Seconds Properties creemos que tu confianza merece un trato excepcional. 

IMPORTANTE!! 

Recuerda que nuestros servicios NO incrementan NUNCA el precio final de la vivienda a nuestros clientes. Nuestra experiencia en el sector nos convertirá en tu aliado, un asesor de confianza que te ayudará a elegir la casa de tus sueños en la mejor zona, informarte sobre el precio de mercado de los inmuebles en los que estás interesado, las calidades empleadas...todo la información imprescindible y objetiva para que tu experiencia sea totalmente satisfactoria.  

Six Seconds Properties pertenece a un grupo  de empresas consolidadas y especializadas todas ellas en el sector del hogar; arquitectura, interiorismo, mobiliario, asesoramiento en la compra venta de bienes raíces etc... Estos recursos propios nos permiten ofrecer unos servicios únicos y exclusivos a nuestros clientes.

Six Seconds Properties es una agencia moderna, sensible con las nuevas tecnologías y oportunidades de mercado. Por ello también somos pioneros en ofrecerte la posibilidad de realizar transacciones inmobiliarias seguras y transparentes con criptomonedas.

Localización

Planos

Vídeos

Finanzas

Esta información que se proporciona aquí está sujeta a errores y no forma parte de ningún contrato. La oferta se puede cambiar o retirar sin previo aviso. Los precios no incluyen los costes de compra

Calcular hipoteca
Cambio de divisas
  • Libras: 207.694 GBP
  • Franco Suizo: 219.813 CHF
  • Yuan Chino: 1.907.043 CNY
  • Dolar: 275.832 USD
  • Corona Sueca: 2.605.281 SEK
  • Corona Noruega: 2.679.646 NOK
  • Corona checa: 5.877.809 CZK

Solicitar información

Responsable del tratamiento: Six Seconds Properties SL, Finalidad del tratamiento: Gestión y control de los servicios ofrecidos a través de la página Web de Servicios inmobiliarios, Envío de información a traves de newsletter y otros, Legitimación: Por consentimiento, Destinatarios: No se cederan los datos, salvo para elaborar contabilidad, Derechos de las personas interesadas: Acceder, rectificar y suprimir los datos, solicitar la portabilidad de los mismos, oponerse altratamiento y solicitar la limitación de éste, Procedencia de los datos: El Propio interesado, Información Adicional: Puede consultarse la información adicional y detallada sobre protección de datos Aquí.
Contacto WhatsApp