Solar urbano en la Guardamar del Segura, excelente ubicación, cerca de la plaza del Ayuntamiento e Iglesia, situado a solo 800 m de la playa. Incluye Proyecto y la estructura terminada.
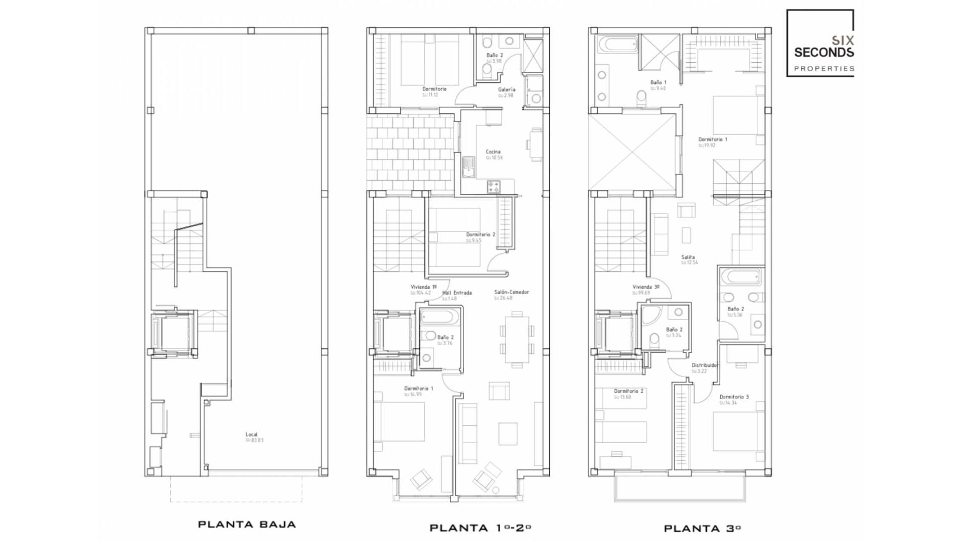
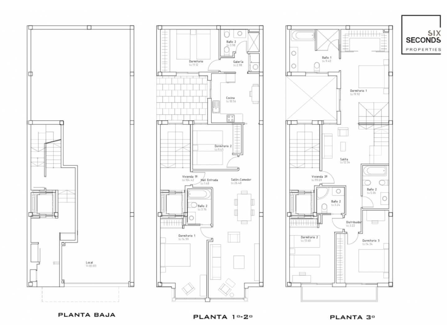
Planta baja de 82.47 m, destinado a local comercial.
Planta primera, superficie: 103.71 m. Proyecto realizado para vivienda de 3 dormitorios y 2 cuartos de baño.
Planta segunda, superficie: 103.71 m. Proyecto realizado para vivienda de 3 dormitorios y 2 cuartos de baño.
Planta tercera y planta cuarta, vivienda destinada ático dúplex, superficie: 176.66 m. Proyecto realizado para vivienda de 3 dormitorios, 3 baños, terraza de 24.55 m.
Planta trasteros, destinada a terraza comunitaria y cuatro trasteros.
Clima:
El clima en la Costa Blanca, a menudo considerado como el mejor de Europa, hace posible un estilo de vida muy sociable y saludable, al aire libre, marcado por instalaciones deportivas y de ocio, con ciudades turísticas, excitantes y cosmopolitas, que destacan por la prestación de servicios máxima categoría, algunos de ellos exclusivos, considerados de auténtico lujo. Todos ellos destinados a un cliente exigente, que busca calidad y cercanía.
La Costa Blanca cuenta con más de 300 días de sol al año. Un paraíso con excelentes conexiones a toda Europa. El Aeropuerto de Alicante-Elche cuenta con unas modernas instalaciones y con un fácil y cómodo acceso desde cualquier punto de la provincia.
Entorno:
La Costa Blanca sigue atrayendo a personas de toda Europa, y de otros lugares del mundo, porque ofrece una calidad de vida única en un hermoso entorno a orillas del mar Mediterráneo, rodeado de montañas y de una exuberante vegetación. Además de los campos de golf y los puertos deportivos que podrás disfrutar por toda la costa, la zona también ofrece la posibilidad de esquiar en la cercana Sierra Nevada, Javalambre o Valdelinares, unos paraísos para amantes de los deportes de invierno, con hermosos paisajes naturales. La Costa Blanca ofrece un estilo de vida singularmente rico, donde las mejores playas y calas del Mediterráneo se combinan con un interior repleto de montañas y pueblos que esconden cultura y monumentos históricos únicos en el mundo.
IMPORTANTE!!
Recuerde que nuestros servicios NO incrementan NUNCA el precio final de la vivienda a nuestros clientes. Nuestra experiencia en el sector nos convertirá en su aliado, un asesor de confianza que le ayudará a elegir la casa de sus sueños en la mejor zona, informarle sobre el precio de mercado de los inmuebles en los que estás interesado, las calidades empleadas, todo la información imprescindible y objetiva para que su experiencia sea totalmente satisfactoria.
Six Seconds Propertites pertenece a un grupo de empresas consolidadas y especializadas todas ellas en el sector del hogar; arquitectura, interiorismo, mobiliario, asesoramiento en la compra venta de bienes raíces etc... Estos recursos propios nos permiten ofrecer unos servicios únicos y exclusivos a nuestros clientes.
Guardamar del Segura está situado en la Costa Blanca Sur, entre el Cabo de Santa Pola y la turística ciudad de Torrevieja. Debe su nombre a que en este lugar desemboca el río Segura: un enclave con encanto que podrás visitar y observar una gran variedad de aves.

Su vasto litoral lo conforman hermosas playas contiguas que se caracterizan por sus arenas doradas y sus aguas cálidas, por lo que son ideales para practicar deportes acuáticos en cualquier época del año.
En su puerto deportivo, además de contratar el amarre de tu embarcación, encontrarás numerosas opciones de cursos, tanto para principiantes como para niveles avanzados, que te facilitarán la práctica de windsurf y kitesurf, Paddle surf (SUP), buceo y snorkel, alquiler de kayaks y canoas, vela y catamarán, paseos en barco, surf…
Algunas de las playas más destacadas son:
Este rincón natural lleno de vida y encanto, todavía lo hace más especial su ubicación cerca de la playa Babilonia. Es un lugar tranquilo y agradable con hermosos detalles, como:
![]()
Situado a orillas del Mediterráneo, este entorno paisajístico de extraordinario atractivo ecológico, cultural y turístico, cuenta con más de 600.000 árboles en sus 800 hectáreas de dunas. Los pinos, palmeras, cipreses y eucaliptus forman un frondoso bosque que ofrece sombra y frescura.
Puedes recorrer sus senderos andando o en bicicleta. Lleva tus prismáticos y admira la diversidad de especies que habitan aquí. Desde garzas hasta águilas, cada rincón ofrece una oportunidad para la observación de la fauna.

Saborea la auténtica cocina local. Desde arroces marineros hasta pescados frescos, te deleitarás con el sabor singular que la ñora proporciona. La ñora es un pimiento redondo que se cultiva y se seca de manera tradicional en Guardamar.
Tampoco olvides degustar los típicos langostinos de Guardamar y sorpréndete con su exquisito sabor.
¿Te gustaría vivir en este hermoso pueblo del litoral mediterráneo? Si deseas visitar viviendas en venta en Guardamar del Segura, en SIX SECONDS PROPERTIES contamos con una variada gama de casas con excelentes vistas al mar, cerca de la playa, en el centro urbano, con piscina…
Cuéntanos cuáles son tus necesidades y te ayudaremos a encontrar tu apartamento, ático, villa, bungalow, adosado en venta en Guardamar del Segura.
Esta información que se proporciona aquí está sujeta a errores y no forma parte de ningún contrato. La oferta se puede cambiar o retirar sin previo aviso. Los precios no incluyen los costes de compra