This charming property in the prime Pinoso area of Guardamar del Segura offers the perfect combination of comfort and coastal living . Just steps from the fine sandy beach and surrounded by all essential amenities , it's an ideal home for both vacation and year-round living.
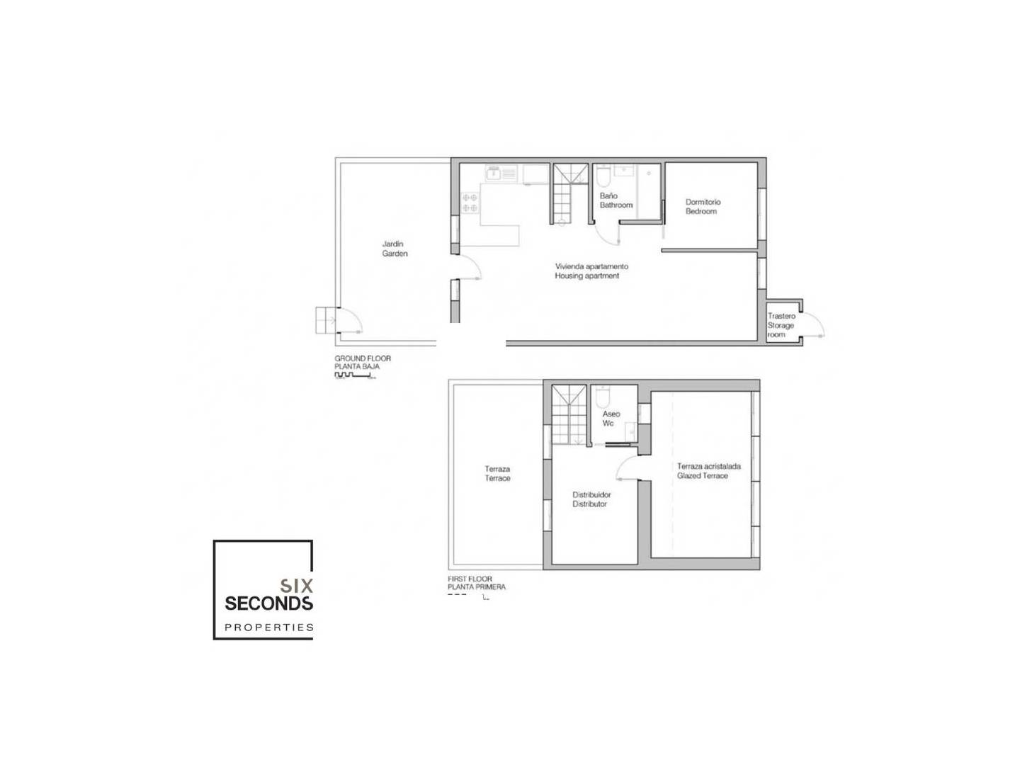
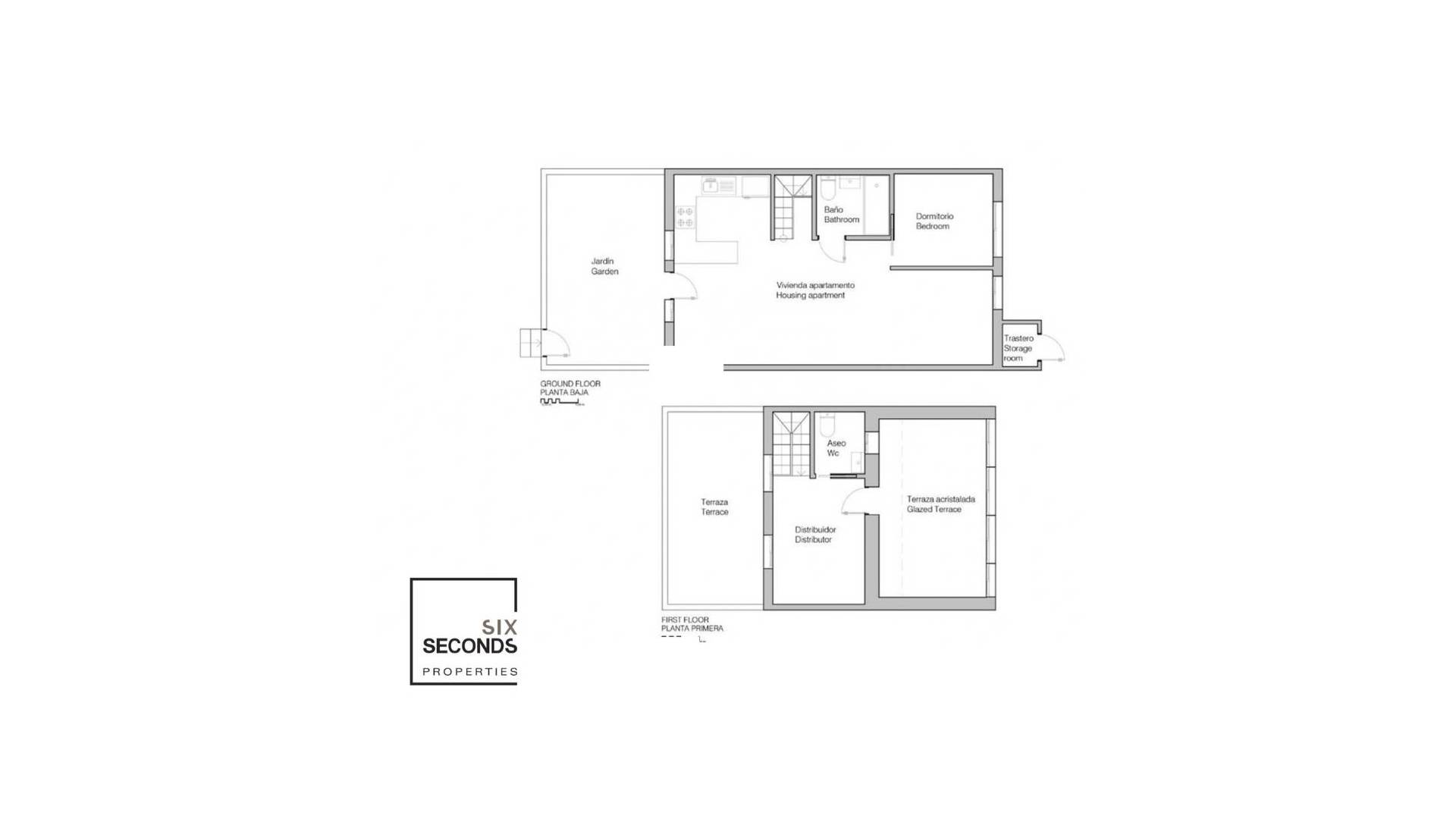
The house has 2 bedrooms , 1 full bathroom , and 1 additional toilet , offering a functional and comfortable space for families or guests. Its renovated, fully equipped kitchen and the fact that it is sold furnished make this property a worry-free move-in option.
The Mediterranean style permeates every corner thanks to its sunny terrace and private balcony , perfect for enjoying the year-round climate. It also features air conditioning throughout , ensuring comfort in any season.
Located in Guardamar del Segura , this property combines a prime location near the sea with modern upgrades and inviting outdoor spaces, making it a fantastic investment opportunity on the Costa Blanca.
Climate:
The Costa Blanca's climate, often considered the best in Europe, fosters a very sociable and healthy outdoor lifestyle, characterized by comprehensive sports and leisure facilities, and exciting, cosmopolitan resort towns that stand out for their top-quality services, some of them exclusive and considered truly luxurious. All of these services cater to discerning customers who seek quality and proximity.
The Costa Blanca boasts over 300 days of sunshine a year. A paradise with excellent connections to all of Europe. Alicante-Elche Airport boasts modern facilities and easy and convenient access from anywhere in the province.
Around:
The Costa Blanca continues to attract people from all over Europe, and around the world, because it offers a unique quality of life in a beautiful setting on the shores of the Mediterranean Sea, surrounded by mountains and lush vegetation.
In addition to the golf courses and marinas along the coast, the area also offers skiing in the nearby Sierra Nevada, Javalambre, and Valdelinares mountains, paradises for winter sports lovers, surrounded by beautiful natural landscapes. The Costa Blanca offers a uniquely rich lifestyle, where the best beaches and coves of the Mediterranean combine with an interior filled with mountains and towns that hide unique cultures and historical monuments.
We have a gift for you:
At our real estate agency, we can help you turn your new property into the home of your dreams by offering you a free technical visit from our design department. Our team will advise you on improvements and decorating options for your property. Completely free of charge!
IMPORTANT!!
Remember that our services NEVER increase the final price of the home for our clients. Our experience in the sector makes us your ally, a trusted advisor who will help you choose your dream home in the best area, inform you about the market price of the properties you're interested in, the quality standards employed, and provide all the essential, objective information to ensure your experience is completely satisfactory.
Our agency belongs to a group of established companies specializing in the home sector: architecture, interior design, furniture, real estate consulting, and more. These in-house resources allow us to offer unique and exclusive services to our clients.
Guardamar del Segura is located on the South Costa Blanca, between Cape Santa Pola and the tourist city of Torrevieja. It owes its name to the fact that the Segura River flows into this place: a charming enclave that you can visit and observe a great variety of birds.

Its vast coastline is made up of beautiful adjoining beaches that are characterized by their golden sands and warm waters , making them ideal for practicing water sports at any time of the year.
In its marina, in addition to hiring the mooring of your boat, you will find numerous course options, both for beginners and advanced levels, that will facilitate the practice of windsurfing and kitesurfing, paddle surfing (SUP) , diving and snorkeling, rental of kayaks and canoes, sailing and catamaran, boat trips, surfing…
Some of the most notable beaches are:
This natural corner full of life and charm is made even more special by its location near Babilonia beach. It is a quiet and pleasant place with beautiful details, such as:
![]()
Located on the shores of the Mediterranean, this landscape environment of extraordinary ecological, cultural and tourist attraction, has more than 600,000 trees in its 800 hectares of dunes. Pine trees, palm trees, cypresses and eucalyptus form a lush forest that offers shade and freshness .
You can explore its trails on foot or by bicycle. Take your binoculars and admire the diversity of species that live here. From herons to eagles, every corner offers an opportunity for wildlife viewing.

Savor authentic local cuisine. From seafood rice to fresh fish, you will delight in the unique flavor that ñora provides . The ñora is a round pepper that is grown and dried in the traditional way in Guardamar.
Also don't forget to taste the typical Guardamar prawns and be surprised by their exquisite flavor.
Would you like to live in this beautiful town on the Mediterranean coast? If you want to visit homes for sale in Guardamar del Segura, at SIX SECONDS PROPERTIES we have a varied range of houses with excellent sea views, near the beach, in the urban center, with a pool...
Tell us what your needs are and we will help you find your apartment, penthouse, villa, bungalow, townhouse for sale in Guardamar del Segura.
This info given here is subject to errors and do not form part of any contract. The offer can be changed or withdrawn without notice. Prices do not include purchase costs.