Nieuw gebouwde strandbungalows in Mar de Pulpí, Costa de Almería

268.000€

Kenmerken

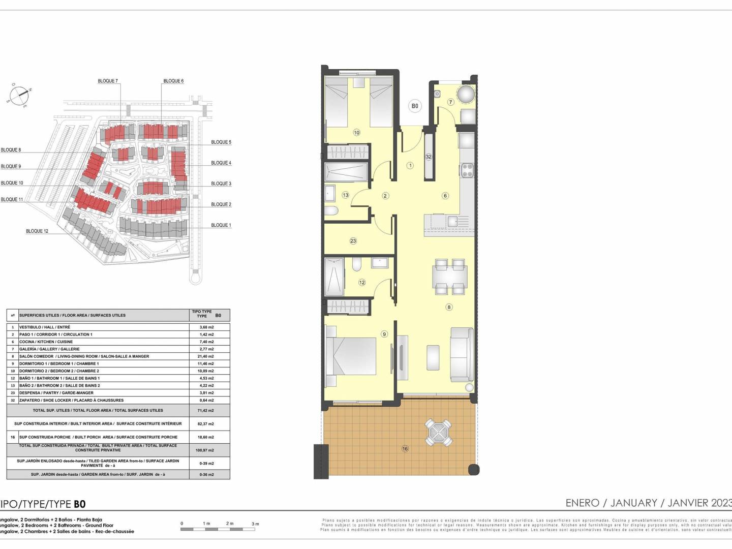
Slaapkamers: 2
Badkamers: 2
Gebouwd: 100m2
Balkon: 18 m2
Zwembad: Ja
Afstand naar het strand: 1000 Mts.
Afstand naar vliegveld: 102000 Mts.
Afstand aan vrije tijd: 1178 Mts.
Afstand tot golfterrein: 9126 Mts.
Parkeren
Lift
Gemeenschappelijk zwembad
Uitzicht op de bergen
Zeezicht
Airco
Golf
Gemeenschapstuin
Ziekenhuis
Inbouwkasten
Groene zones
Keuken: ingericht + apparatuur
Nabij de zee
School
Privé parkeerplaats: 1
Vloerverwarming
Speeltuin
Gemeenschappelijke garage
Energy Rating
Energy RatingB

Beschrijving

Dit nieuwe wooncomplex is ideaal gelegen met uitzicht op de stranden van Los Nardos en La Entrevista en biedt een idyllische omgeving om volop te genieten van de mediterrane levensstijl. Gelegen in de woonwijk Mar de Pulpí, combineert het de rust van de zee met het gemak van voorzieningen die het hele jaar door beschikbaar zijn, zoals restaurants, een supermarkt en een sportcentrum.

Dit exclusieve en beveiligde landgoed heeft een traditioneel ontwerp, geïnspireerd op de architectuur van Andalusische en mediterrane dorpen. De woningen, verkrijgbaar met twee of drie slaapkamers, zijn zorgvuldig ontworpen om aan uiteenlopende levensstijlen te voldoen en bieden comfort en elegantie tot in het kleinste detail.

Het complex beschikt over uitgestrekte, goed onderhouden tuinen en gemeenschappelijke ruimtes die uitnodigen tot ontspanning en plezier in een uitzonderlijke omgeving. Het biedt diverse zwembaden voor volwassenen en kinderen, ontspanningsruimtes met bubbelbaden, aangelegde stranden, kinderspeelplaatsen, siervijvers en een charmant centraal plein dat het hart van het wooncomplex vormt.

Deze appartementen met zeezicht zijn ideaal voor wie op zoek is naar een lichte en comfortabele accommodatie. Elk appartement beschikt over een parkeerplaats en is voorbereid op de aansluiting van een elektrische auto – een bewijs van onze inzet voor duurzame ontwikkeling en het voldoen aan de moderne behoeften.

Mar de Pulpí biedt de unieke kans om aan een sprankelende zee te wonen, in een omgeving die luxe, comfort en de onvergelijkbare charme van de Middellandse Zee combineert.

Klimaat:  

Het klimaat van de Costa del Sol, vaak beschouwd als het beste van Europa, bevordert een gezonde en sociale levensstijl . Deze wordt gekenmerkt door een ontspannen sfeer, een breed scala aan sport- en vrijetijdsactiviteiten en levendige, kosmopolitische toeristische resorts die bekend staan om hun hoogwaardige, soms exclusieve en luxueuze voorzieningen. Al deze voordelen spreken een veeleisende clientèle aan die waarde hecht aan kwaliteit en persoonlijke service.  

De Costa del Sol geniet meer dan 300 dagen zon per jaar. Dit ware paradijs biedt uitstekende openbaarvervoersverbindingen en is goed verbonden met de rest van Europa. De luchthaven Alicante-Elche beschikt over moderne faciliteiten en is gemakkelijk bereikbaar vanuit de hele provincie.  

Ehm:  

De Costa del Sol blijft bezoekers uit heel Europa en daarbuiten aantrekken en biedt een uitzonderlijke levenskwaliteit in een idyllische mediterrane omgeving, omgeven door bergen en weelderige vegetatie. Naast de golfbanen en jachthavens langs de kust, beschikt de regio ook over skigebieden in de nabijgelegen Sierra Nevada, Javalambre en Valdelinares ware wintersportparadijzen met adembenemende natuurlandschappen. De Costa del Sol biedt een ongeëvenaarde levensstijl, waar de mooiste stranden en baaien van de Middellandse Zee samenkomen met een achterland van bergen en dorpen met een uniek cultureel en historisch erfgoed.  

We hebben een cadeautje voor je:  

Bij Six Seconds Properties helpen we u uw nieuwe woning om te toveren tot uw droomhuis. We bieden een gratis adviesgesprek op locatie aan met onze ontwerpafdeling . Ons team adviseert u over mogelijke verbeteringen en ontwerpopties voor uw woning. Deze service is volledig gratis!

BELANGRIJK!!   

Houd er rekening mee dat onze diensten de uiteindelijke prijs van de woning voor onze klanten nooit zullen verhogen . Dankzij onze jarenlange ervaring in de branche zijn wij uw betrouwbare partner en adviseur. Wij helpen u bij het vinden van uw droomhuis op de beste locatie, informeren u over marktprijzen voor woningen waarin u geïnteresseerd bent, over de kwaliteit van de gebruikte materialen en voorzien u van alle belangrijke en objectieve informatie om uw volledige tevredenheid te garanderen.  

Six Seconds Properties ( 965 05 96 85 ) maakt deel uit van een groep gevestigde bedrijven, die allemaal gespecialiseerd zijn in de residentiële sector: architectuur, interieurontwerp, meubels, advies bij de aan- en verkoop van onroerend goed , enz. Deze expertise stelt ons in staat onze klanten unieke en exclusieve diensten aan te bieden.

Six Seconds Properties is een modern makelaarskantoor dat oog heeft voor nieuwe technologieën en marktkansen. Daarom zijn wij ook een pionier in het bieden van de volgende mogelijkheden:   Veilige en transparante vastgoedtransacties met behulp van cryptovaluta.

Plaats

Blauwdrukken

Videos

Economie

Deze informatie is hier onderhevig aan fouten en maakt geen deel uit van een contract. De aanbieding kan zonder kennisgeving worden gewijzigd of ingetrokken. Prijzen zijn exclusief aankoopkosten.

Bereken hypotheken
Wisselkantoor
  • Pounds: 231.485 GBP
  • Zwitserse frank: 244.845 CHF
  • Chinese yuan: 2.115.565 CNY
  • Dollar: 311.791 USD
  • Zweedse kroon: 2.900.966 SEK
  • De Noorse kroon: 2.886.896 NOK
  • Checa kroon: 6.500.876 CZK

Vraag voor informatie

Responsable del tratamiento: Six Seconds Properties SL, Finalidad del tratamiento: Gestión y control de los servicios ofrecidos a través de la página Web de Servicios inmobiliarios, Envío de información a traves de newsletter y otros, Legitimación: Por consentimiento, Destinatarios: No se cederan los datos, salvo para elaborar contabilidad, Derechos de las personas interesadas: Acceder, rectificar y suprimir los datos, solicitar la portabilidad de los mismos, oponerse altratamiento y solicitar la limitación de éste, Procedencia de los datos: El Propio interesado, Información Adicional: Puede consultarse la información adicional y detallada sobre protección de datos Aquí.
Contact WhatsApp