Cette charmante propriété située dans le quartier privilégié de Pinoso, à Guardamar del Segura, allie parfaitement confort et vie côtière . À quelques pas de la plage de sable fin et à proximité de toutes les commodités essentielles , c'est une maison idéale pour les vacances comme pour y vivre toute l'année.
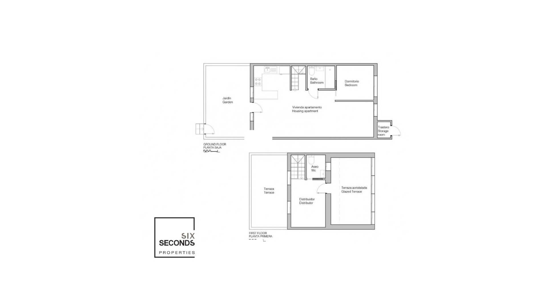
La maison dispose de deux chambres , d'une salle de bain complète et de toilettes supplémentaires , offrant un espace fonctionnel et confortable pour les familles ou les invités. Sa cuisine rénovée et entièrement équipée, ainsi que sa vente meublée, en font un bien idéal pour emménager en toute sérénité.
Le style méditerranéen imprègne chaque recoin grâce à sa terrasse ensoleillée et son balcon privé , parfaits pour profiter du climat toute l'année. La climatisation est également disponible dans toutes les pièces , garantissant un confort optimal en toute saison.
Située à Guardamar del Segura , cette propriété combine un emplacement privilégié près de la mer avec des améliorations modernes et des espaces extérieurs accueillants, ce qui en fait une opportunité d'investissement fantastique sur la Costa Blanca.
Climat:
Le climat de la Costa Blanca, souvent considéré comme le meilleur d'Europe, favorise un mode de vie sain et convivial en plein air, caractérisé par de nombreuses installations sportives et de loisirs, ainsi que par des stations balnéaires cosmopolites et dynamiques qui se distinguent par leurs services haut de gamme, certains exclusifs et considérés comme véritablement luxueux. Tous ces services s'adressent à une clientèle exigeante en quête de qualité et de proximité.
La Costa Blanca bénéficie de plus de 300 jours de soleil par an. Un véritable paradis avec d'excellentes connexions avec toute l'Europe. L'aéroport d'Alicante-Elche dispose d'installations modernes et d'un accès facile et pratique depuis n'importe quelle partie de la province.
Autour:
La Costa Blanca continue d'attirer des gens de toute l'Europe et du monde entier, car elle offre une qualité de vie unique dans un cadre magnifique au bord de la mer Méditerranée, entourée de montagnes et d'une végétation luxuriante.
Outre les terrains de golf et les marinas du littoral, la région offre également des pistes de ski dans les montagnes voisines de la Sierra Nevada, de Javalambre et de Valdelinares, véritables paradis pour les amateurs de sports d'hiver, au cœur de paysages naturels magnifiques. La Costa Blanca offre un art de vivre d'une richesse unique, où les plus belles plages et criques de la Méditerranée se mêlent à un arrière-pays peuplé de montagnes et de villes qui recèlent des cultures et des monuments historiques uniques.
Nous avons un cadeau pour vous :
Dans notre agence immobilière, nous vous aidons à transformer votre nouveau bien en la maison de vos rêves en vous offrant une visite technique gratuite de notre bureau d'études. Notre équipe vous conseillera sur les améliorations et les options de décoration pour votre propriété. C'est entièrement gratuit !
IMPORTANT!!
N'oubliez pas que nos services n'augmentent JAMAIS le prix final du bien pour nos clients. Notre expérience dans le secteur fait de nous votre allié, un conseiller de confiance qui vous aidera à choisir la maison de vos rêves dans le meilleur quartier, vous informera sur le prix du marché des biens qui vous intéressent, sur les normes de qualité appliquées et vous fournira toutes les informations essentielles et objectives pour une expérience pleinement satisfaisante.
Notre agence fait partie d'un groupe d'entreprises reconnues spécialisées dans le secteur de la maison : architecture, décoration d'intérieur, mobilier, conseil immobilier, etc. Ces ressources internes nous permettent d'offrir des services uniques et exclusifs à nos clients.
Guardamar del Segura est situé sur la Costa Blanca Sud, entre le cap Santa Pola et la ville touristique de Torrevieja. Il doit son nom au fait que la rivière Segura se jette dans cet endroit : une charmante enclave que vous pourrez visiter et observer une grande variété d'oiseaux.

Son vaste littoral est composé de belles plages attenantes caractérisées par leur sable doré et leurs eaux chaudes , les rendant idéales pour la pratique de sports nautiques à tout moment de l'année.
Dans sa marina, en plus de louer l'amarrage de votre bateau, vous trouverez de nombreuses options de cours, aussi bien pour les niveaux débutants que avancés, qui faciliteront la pratique de la planche à voile et du kitesurf, du paddle surf (SUP) , de la plongée et du snorkeling, de la location de kayaks et canoës, voile et catamaran, balades en bateau, surf…
Certaines des plages les plus remarquables sont :
Ce coin naturel plein de vie et de charme est rendu encore plus spécial par son emplacement à proximité de la plage de Babilonia. C'est un endroit calme et agréable avec de beaux détails, tels que :
![]()
Situé au bord de la Méditerranée, cet environnement paysager d'un extraordinaire attrait écologique, culturel et touristique, compte plus de 600 000 arbres dans ses 800 hectares de dunes. Pins, palmiers, cyprès et eucalyptus forment une forêt luxuriante qui offre ombre et fraîcheur .
Vous pourrez parcourir ses sentiers à pied ou à vélo. Prenez vos jumelles et admirez la diversité des espèces qui vivent ici. Des hérons aux aigles, chaque coin offre une opportunité d'observation de la faune.

Savourez une cuisine locale authentique. Du riz aux fruits de mer au poisson frais, vous apprécierez la saveur unique qu'offre la ñora . La nora est un poivre rond cultivé et séché de manière traditionnelle à Guardamar.
N'oubliez pas non plus de goûter les crevettes typiques de Guardamar et de vous laisser surprendre par leur saveur exquise.
Aimeriez-vous vivre dans cette belle ville de la côte méditerranéenne ? Si vous souhaitez visiter des maisons à vendre à Guardamar del Segura, chez SIX SECONDS PROPERTIES nous disposons d'une gamme variée de maisons avec d'excellentes vues sur la mer, près de la plage, dans le centre urbain, avec piscine...
Dites-nous quels sont vos besoins et nous vous aiderons à trouver votre appartement, penthouse, villa, bungalow, maison de ville à vendre à Guardamar del Segura.
Cette information donnée ici est sujette à des erreurs et ne fait partie d'aucun contrat. L'offre peut être modifiée ou retirée sans préavis. Les prix n'incluent pas les coûts d'achat