Locaux commerciaux · D'occasion Los Montesinos · Alicante · Réf.: XRE-87372

106.000€

Les caractéristiques

Construit: 182m2
Pièce de stockage
Non meublé
Énergie
ÉnergieX

La description

Nouvelle unité commerciale à vendre à Los Montesinos. Il est vendu tel quel, sous sa forme de base, prêt à être fini dans le style exactement comme vous le souhaitez. Il y a aussi la possibilité de convertir cette unité en une maison très spacieuse à vivre.

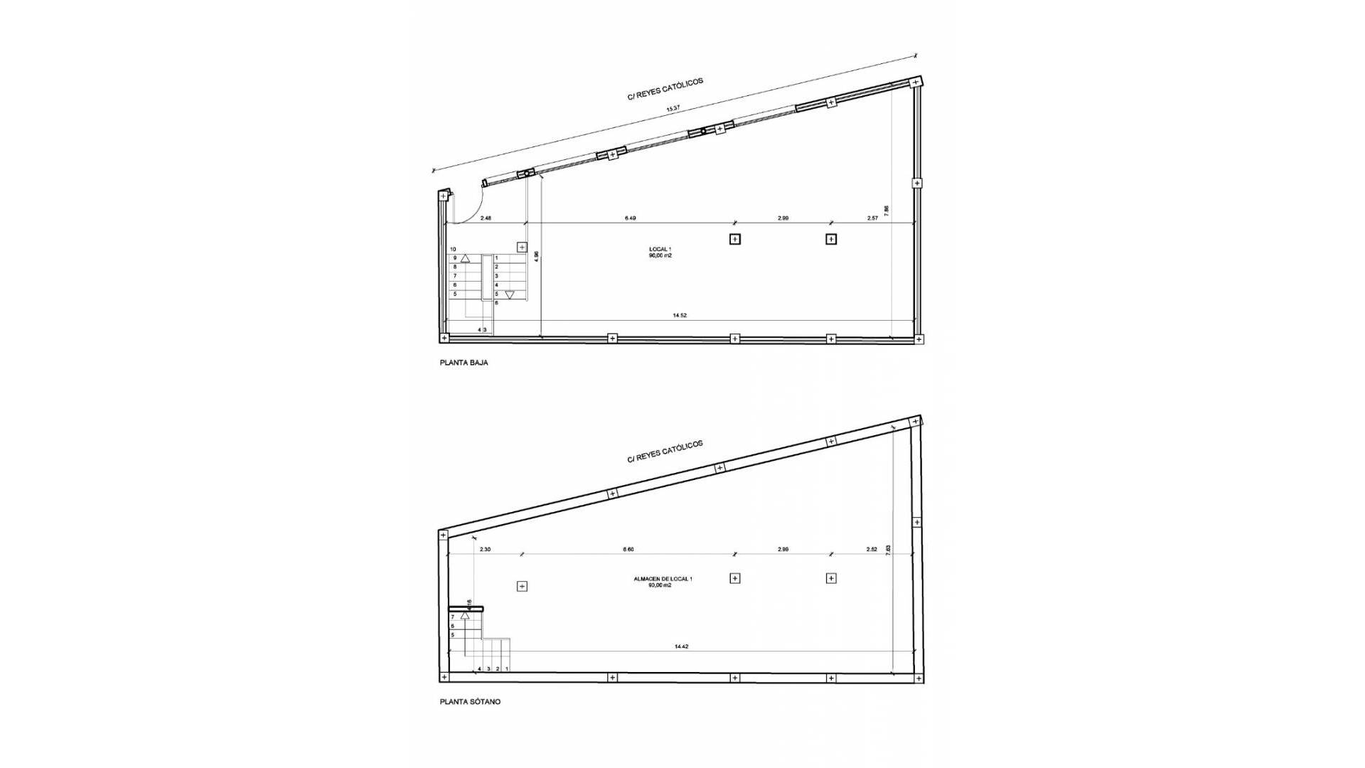
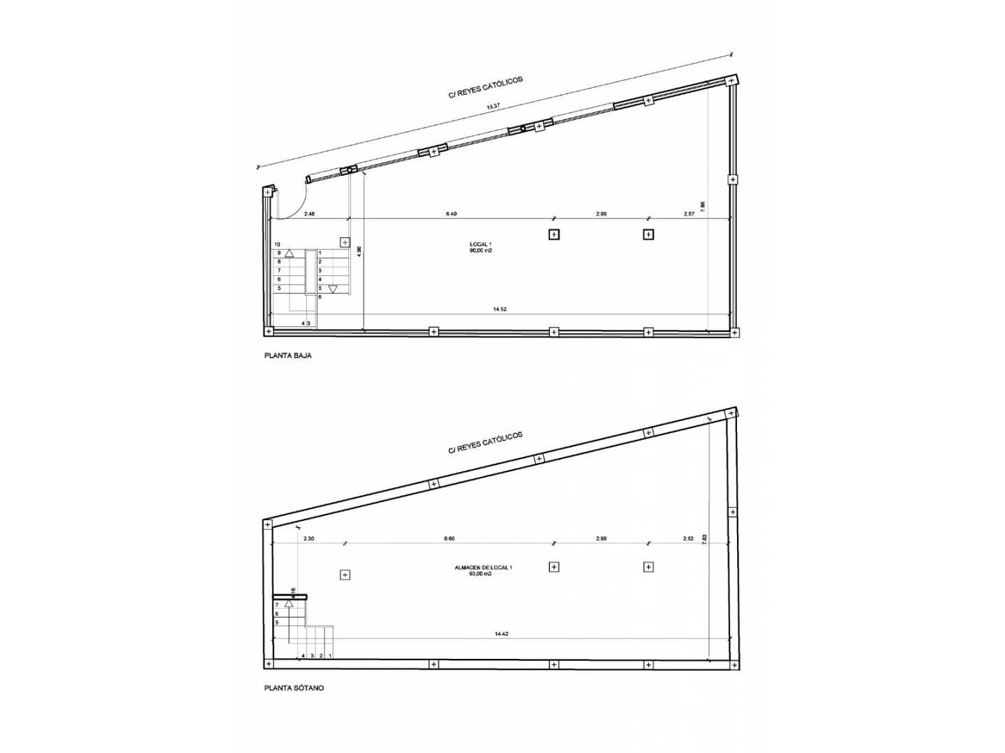
L'entrée principale est légèrement surélevée et il y a quatre grandes fenêtres à l'avant de l'unité, laissant entrer beaucoup de lumière naturelle. Le rez-de-chaussée de la propriété fait 97m2, ce qui est une grande taille, que vous souhaitiez en faire un usage commercial ou habitable. Juste à l'entrée, un escalier mène au demi-sous-sol.

Le demi-sous-sol a une superficie de 85m2 et peut être utilisé pour le stockage, ou également pour faire partie de la maison si vous le souhaitez pour une utilisation habitable. Il y a des fenêtres minces dans la partie supérieure qui permettent à la lumière naturelle d'entrer, comme vous pouvez le voir sur les photos extérieures.

Une propriété avec beaucoup de potentiel, peu importe l'usage que vous comptez en faire!

Emplacement

Économie

Cette information donnée ici est sujette à des erreurs et ne fait partie d'aucun contrat. L'offre peut être modifiée ou retirée sans préavis. Les prix n'incluent pas les coûts d'achat

Calculer les hypothèques
Échange de devises
  • Livres sterling: 91.923 GBP
  • Franc suisse: 97.287 CHF
  • Yuan chinois: 844.036 CNY
  • Dollar: 122.080 USD
  • Couronne suédoise: 1.153.068 SEK
  • La couronne norvégienne: 1.185.981 NOK
  • Couronne Checa: 2.601.452 CZK

Demander des informations

Responsable del tratamiento: Six Seconds Properties SL, Finalidad del tratamiento: Gestión y control de los servicios ofrecidos a través de la página Web de Servicios inmobiliarios, Envío de información a traves de newsletter y otros, Legitimación: Por consentimiento, Destinatarios: No se cederan los datos, salvo para elaborar contabilidad, Derechos de las personas interesadas: Acceder, rectificar y suprimir los datos, solicitar la portabilidad de los mismos, oponerse altratamiento y solicitar la limitación de éste, Procedencia de los datos: El Propio interesado, Información Adicional: Puede consultarse la información adicional y detallada sobre protección de datos Aquí.
Contact WhatsApp