Unabhängige Villa · Gebraucht Albir · Alicante · Ref.: RE-84035

1.575.000€

Charakteristik

Schlafzimmer: 6
Das Badezimmer: 6
Gebaut: 420m2
Grundstück: 1.200m2
Schwimmbad: Ja
Garage
Garten
Lagerraum
Parken
Doppelverglasung
Offene Terrasse
Eingezäuntes Grundstück
überdachte Terrasse
Heizung zentralisiert
Klimaanlage heiß kalt
Baujahr: 2026
Nennleistung
NennleistungC

Beschreibung

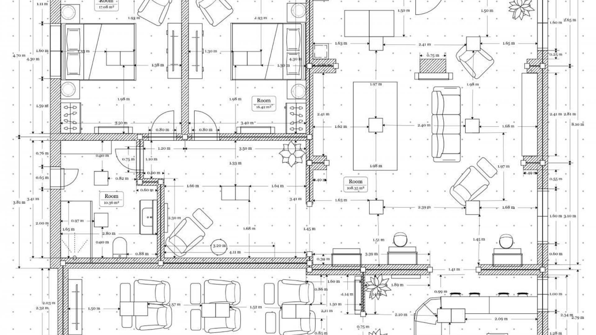
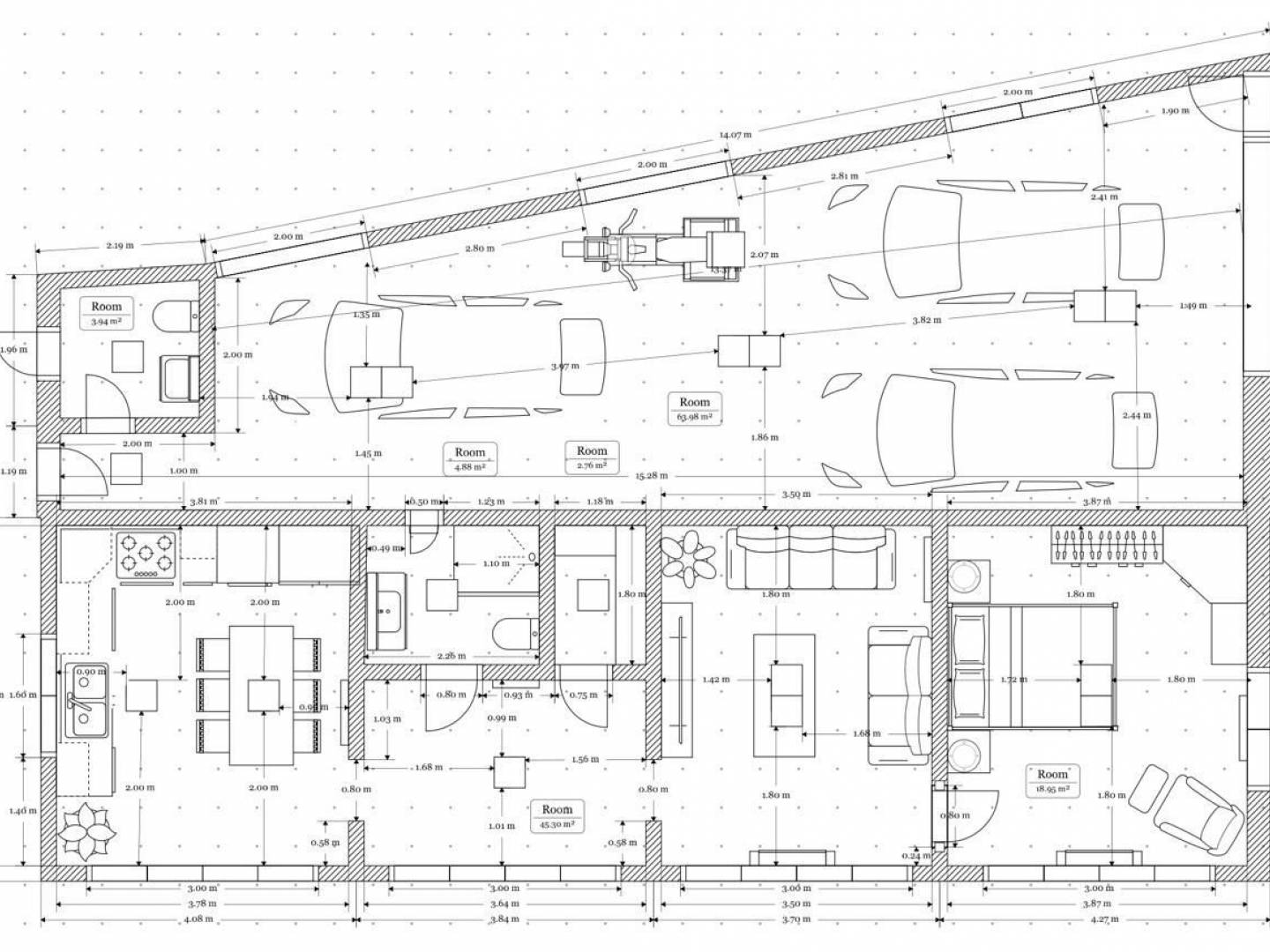
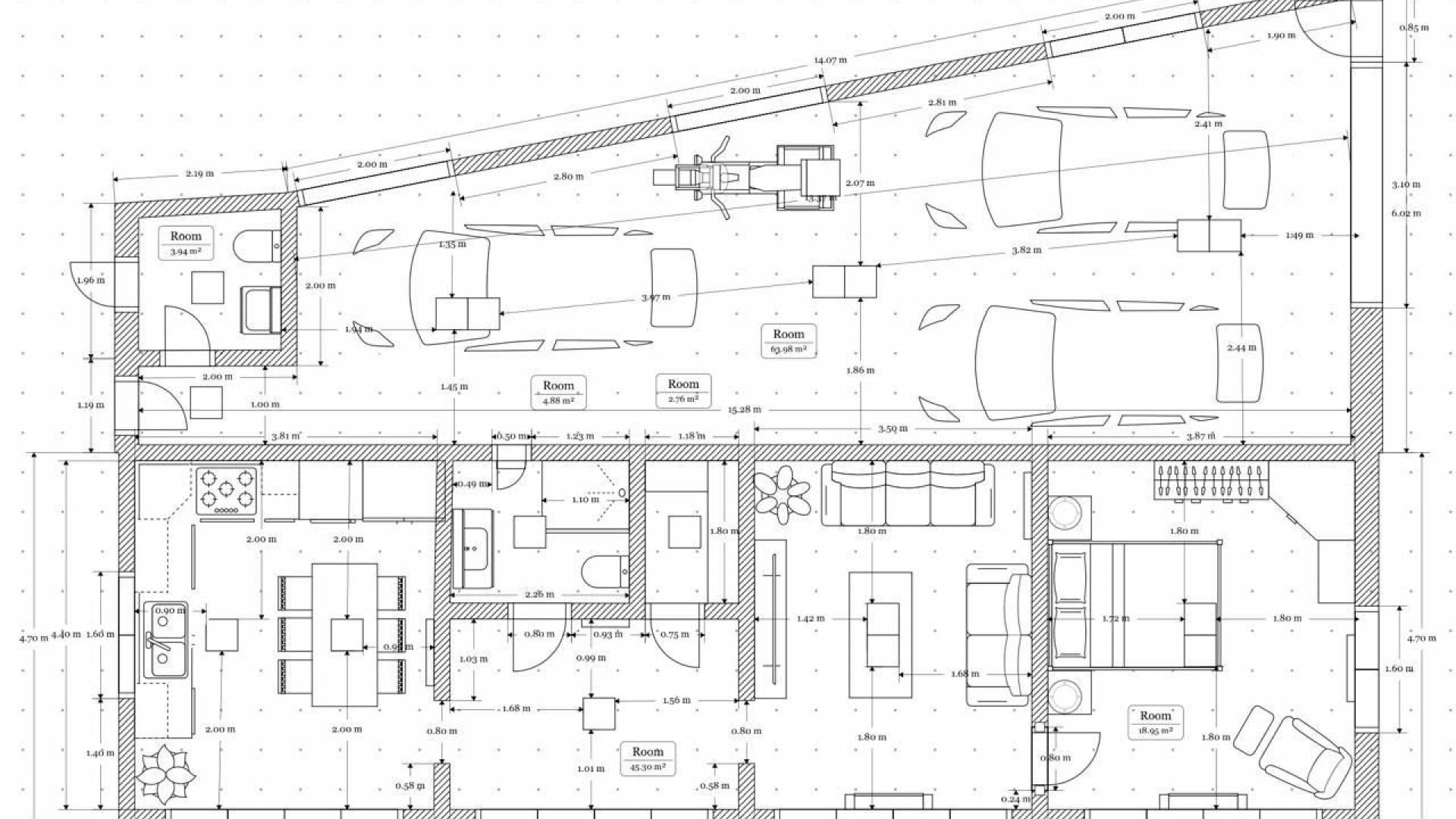
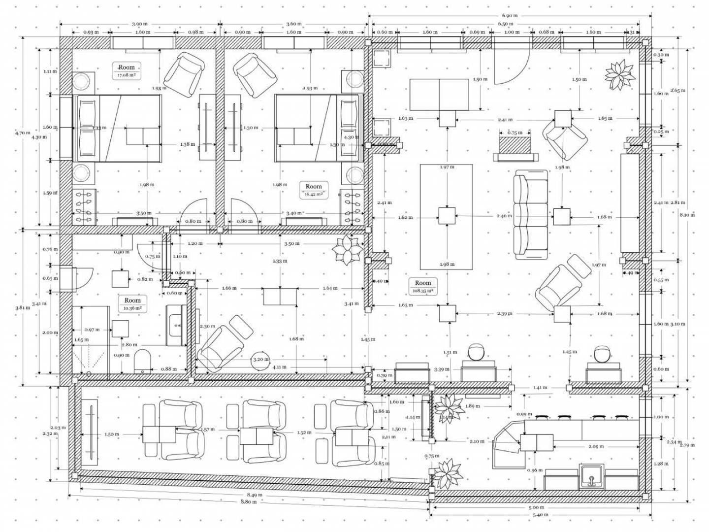
Gelegen in einer der exklusivsten Gegenden von El Albir, befindet sich diese neu fertiggestellte Immobilie (Frühling 2026) auf einem großzügigen Grundstück von 1.200 m² und bietet eine Baufläche von 420 m², die mit Blick auf absoluten Komfort und Energieeffizienz verteilt ist. Die Wohnung wurde unter Berücksichtigung der vollständigen Inklusion entworfen und verfügt über ein Rampensystem, das den Zugang für Menschen mit eingeschränkter Mobilität im gesamten Grundstück gewährleistet. Die Hauptstruktur ist in zwei unabhängige und hochfunktionale Ebenen unterteilt. Im Erdgeschoss priorisiert das Design die Weitläufigkeit mit einem integrierten Wohn-Essbereich, einer Küche und zwei Schlafzimmern, von denen eines über ein ensuite Badezimmer verfügt, sowie einem Gäste-WC. Die obere Etage spiegelt diesen Komfort mit zwei weiteren Schlafzimmern und zwei zusätzlichen Badezimmern wider, fügt jedoch eine einzigartige Freizeitebene hinzu: einen speziellen Home-Cinema-Raum und einen angrenzenden Bereich, der ideal für die Umwandlung in eine sekundäre Küche oder eine Bar ist, wodurch diese Etage zu einem vollständig autonomen Raum wird. Das Außenerlebnis wird durch ein unabhängiges Gebäude neben dem 10 x 4,5 Meter großen Pool bereichert. Dieses "Gästehaus" verfügt über eine eigene Küche, ein Esszimmer, ein Bad und ein Schlafzimmer, das totale Privatsphäre bietet. Der Wellness-Bereich wird durch ein Poolhaus ergänzt, das eine Vorinstallation für Klimatisierung und ein privates Hammam umfasst. Die Immobilie zeichnet sich durch modernste Technologie aus. Sie ist mit einem umfassenden Smart Home-System und einer hochentwickelten Photovoltaik-Infrastruktur ausgestattet, die über eine Speicherfähigkeit von 11 kWh und eine Backup-Leistung von 10 kW verfügt, um einen minimalen und verantwortungsvollen Verbrauch zu gewährleisten. Der thermische Komfort wird durch Split-Klimaanlagen (Kälte/Wärme), PVC-Fenster mit doppelt verglastem Climalit und hochwertige Jalousien sichergestellt. Außerdem ist die Wohnung bereits für die sofortige Installation eines Kamins vorbereitet und verfügt bereits über die notwendigen Anschlüsse. Die Liebe zum Detail erstreckt sich auf das Äußere, wo der Garten komplett fertiggestellt mit einem automatischen Bewässerungssystem, einem dekorativen Brunnen und einem durchdachten LED-Beleuchtungskonzept für das Grundstück und die Treppen übergeben wurde. In Bezug auf die Logistik bietet das Anwesen eine geschlossene Garage für zwei Fahrzeuge mit integriertem Bad sowie einen Carport für zwei weitere Autos. Diese Villa stellt eine einzigartige Gelegenheit dar, eine Residenz zu beziehen, wo Hausautomation, Solar-Nachhaltigkeit und barrierefreies Design nur einen Schritt von allen Dienstleistungen in El Albir entfernt sind.

Wirtschaft

Diese hier angegebenen Informationen unterliegen Fehlern und sind nicht Bestandteil eines Vertrages. Das Angebot kann ohne vorherige Ankündigung geändert oder zurückgezogen werden. Die Preise beinhalten keine Einkaufskosten.

Berechnen Hypotheken
Geldwechsel
  • Pfund: 1.360.958 GBP
  • Schweizerfranken: 1.442.070 CHF
  • Chinesischen Yuan: 12.598.268 CNY
  • Dollar: 1.852.358 USD
  • Schwedische Krone: 17.076.150 SEK
  • Die norwegische Krone: 17.043.863 NOK
  • Checa-Krone: 38.278.800 CZK

Nach Informationen fragen

Responsable del tratamiento: Six Seconds Properties SL, Finalidad del tratamiento: Gestión y control de los servicios ofrecidos a través de la página Web de Servicios inmobiliarios, Envío de información a traves de newsletter y otros, Legitimación: Por consentimiento, Destinatarios: No se cederan los datos, salvo para elaborar contabilidad, Derechos de las personas interesadas: Acceder, rectificar y suprimir los datos, solicitar la portabilidad de los mismos, oponerse altratamiento y solicitar la limitación de éste, Procedencia de los datos: El Propio interesado, Información Adicional: Puede consultarse la información adicional y detallada sobre protección de datos Aquí.
Kontakt WhatsApp