Unabhängige Villa · Neubau Benissa · Alicante · Ref.: RE-62806

2.850.000€

Charakteristik

Schlafzimmer: 4
Das Badezimmer: 4
Gebaut: 716m2
Grundstück: 800m2
Schwimmbad: Ja
Nach Plan
Unmöbliert
Heizung
Privater Pool
Fensterläden
Einbauschränke
Wohngebiet
Parken
Böden: Fliesen
Einbauküche
Neubau
Klimaanlage
Automatische_tür
Keller
Alarm_pre_install
Klärgrube
Im Freien
Meeresblicke
Elektrizität
Schwimmbad
Private Terrasse
Domotik
Luxus
Elektrische Jalousien
Urban
Privater Eingang
Zugang mit dem Auto
Einfache Wartung
Panorama
In der Nähe des Meeres
Neubau
Beliebte Urbanisierung
Video-Gegensprechanlage
Ruhig
In der Nähe von Supermärkten
Ruhige Lage
Eigenes Badezimmer mit Ankleidebereich
Internet / WLAN
Sehr gute Anbindung
Private Toiletten
Gebäude: Südosten
Garten
Nennleistung
NennleistungA

Beschreibung

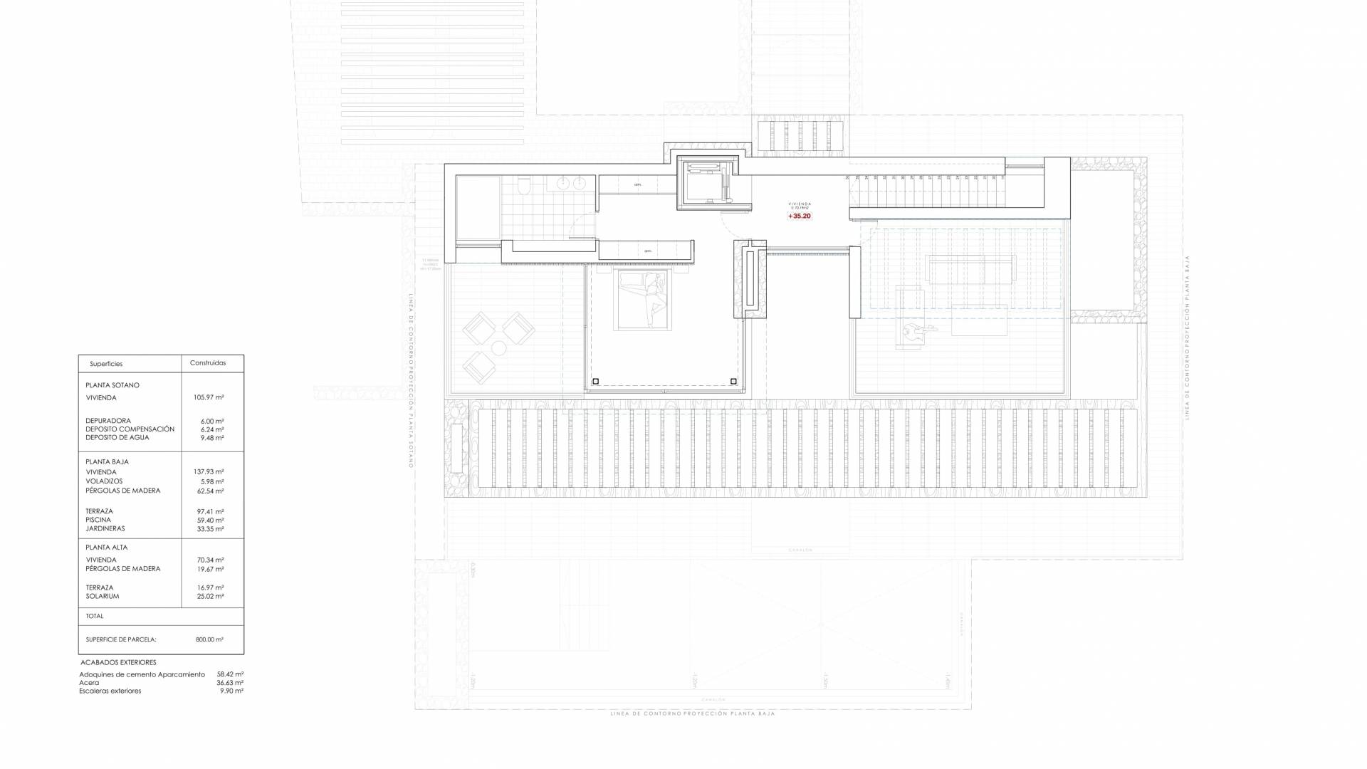
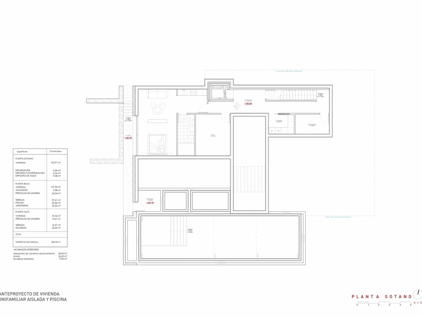
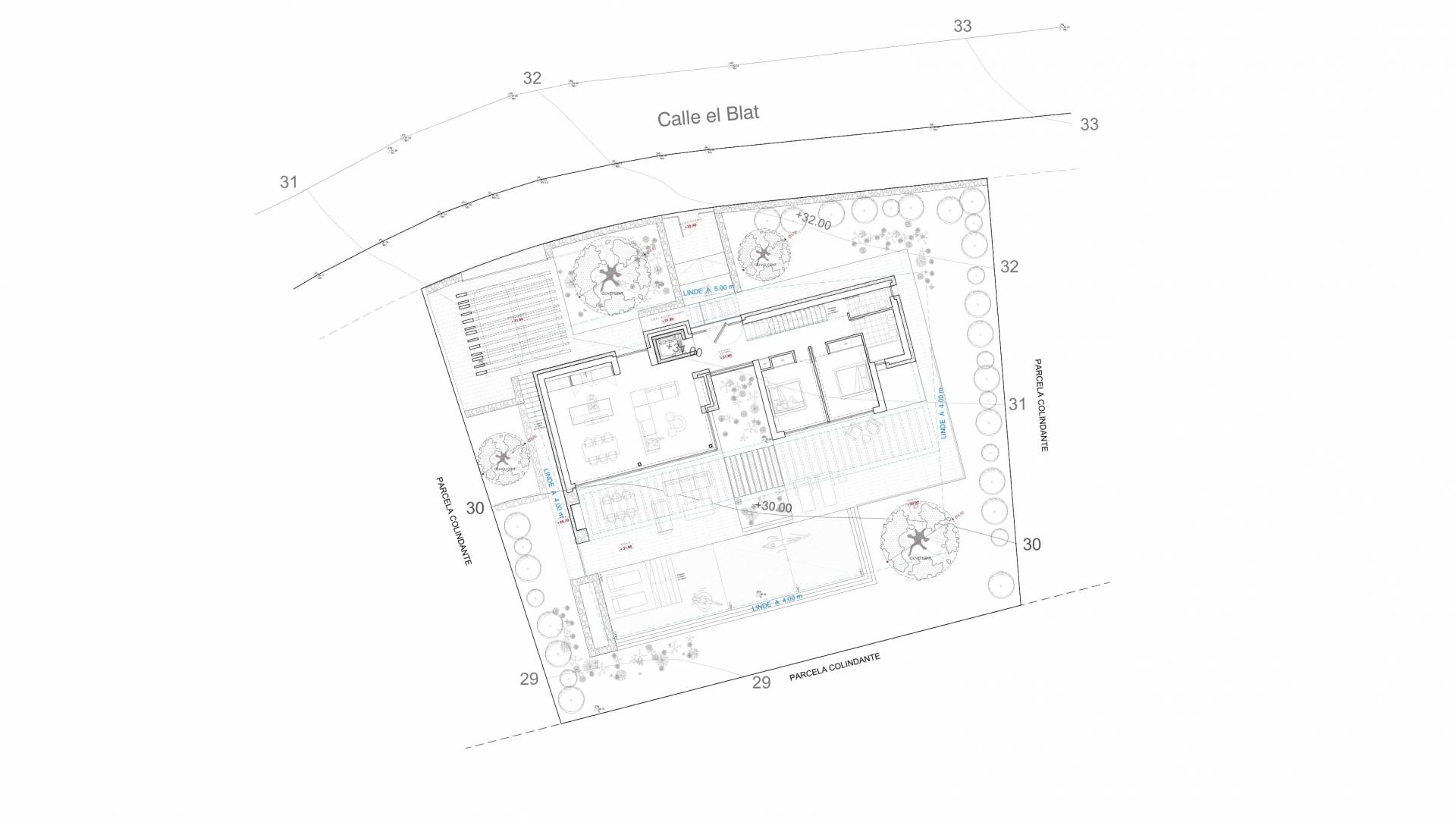
Diese exklusive Neubauvilla liegt auf einem 800 m² großen Grundstück in der Calle Blat, nur wenige Schritte vom Strand La Fustera entfernt. Die Architektur vereint mediterranes Flair mit zeitgenössischer Eleganz und kombiniert Naturstein, Holz und sanfte, neutrale Farbtöne harmonisch mit der Küstenlandschaft. Mit einer Gesamtfläche von 716 m², verteilt auf drei Ebenen – Untergeschoss, Erdgeschoss und Obergeschoss – bietet die Villa ein perfektes Gleichgewicht aus Funktionalität, Design und Komfort. Das 105,97 m² große Untergeschoss ist sowohl praktisch als auch entspannend gestaltet. Es umfasst einen voll ausgestatteten Fitnessraum, eine Waschküche und Technikräume und bietet die Möglichkeit, zusätzliche Räume wie einen Weinkeller, ein Heimkino oder einen Mehrzweckraum einzurichten. Auf dieser Ebene befinden sich auch die Poolfilteranlage und die Wassertanks, die eine effiziente Steuerung aller technischen Anlagen gewährleisten. Das 137,93 m² große Obergeschoss präsentiert sich als offener und lichtdurchfluteter Raum, der die Essenz mediterranen Lebensgefühls widerspiegelt. Das großzügige Wohnzimmer, Esszimmer und die Küche öffnen sich durch bodentiefe Fenster zur Hauptterrasse und zum Infinity-Pool und bieten einen spektakulären Panoramablick auf das Meer, der den Charakter dieses Hauses prägt. Zwei Doppelschlafzimmer, ein Badezimmer und ein Gäste-WC vervollständigen diese Etage und bieten Komfort und Funktionalität. Im Außenbereich überdacht eine Holzpergola die Wohn- und Essbereiche, umgeben von üppigen Gärten, sonnigen Terrassen und einem 59,40 m² großen Infinity-Pool, der optisch nahtlos mit dem Meer verschmilzt. Die obere Etage mit 70,19 m² ist der Master-Suite gewidmet – einem privaten Rückzugsort mit Ankleidezimmer, eigenem Badezimmer und einer großen privaten Terrasse mit atemberaubendem Blick auf das Mittelmeer. Ein zweites Schlafzimmer oder Büro vervollständigt diese Etage, die auch Zugang zu einem 25,02 m² großen Solarium bietet – ideal zum Entspannen in der Sonne und Genießen der Ruhe der Umgebung. In einer ruhigen Wohnstraße, umgeben von modernen Villen, liegt dieses Anwesen in außergewöhnlicher Lage, nur 3 Gehminuten vom Strand La Fustera, der Mandala Beach Bar & Restaurant sowie wichtigen Annehmlichkeiten wie Supermärkten und Geschäften entfernt. Die Villa besticht durch ihr helles, großzügiges Raumkonzept und die fließenden Übergänge zwischen Innen- und Außenbereich und verkörpert so den modernen mediterranen Lebensstil: elegant, entspannt und in perfekter Harmonie mit dem spektakulären Panoramablick auf das Meer.

Ort

Wirtschaft

Diese hier angegebenen Informationen unterliegen Fehlern und sind nicht Bestandteil eines Vertrages. Das Angebot kann ohne vorherige Ankündigung geändert oder zurückgezogen werden. Die Preise beinhalten keine Einkaufskosten.

Berechnen Hypotheken
Geldwechsel
  • Pfund: 2.468.813 GBP
  • Schweizerfranken: 2.619.150 CHF
  • Chinesischen Yuan: 22.774.350 CNY
  • Dollar: 3.335.070 USD
  • Schwedische Krone: 30.938.175 SEK
  • Die norwegische Krone: 31.100.055 NOK
  • Checa-Krone: 69.443.100 CZK

Nach Informationen fragen

Responsable del tratamiento: Six Seconds Properties SL, Finalidad del tratamiento: Gestión y control de los servicios ofrecidos a través de la página Web de Servicios inmobiliarios, Envío de información a traves de newsletter y otros, Legitimación: Por consentimiento, Destinatarios: No se cederan los datos, salvo para elaborar contabilidad, Derechos de las personas interesadas: Acceder, rectificar y suprimir los datos, solicitar la portabilidad de los mismos, oponerse altratamiento y solicitar la limitación de éste, Procedencia de los datos: El Propio interesado, Información Adicional: Puede consultarse la información adicional y detallada sobre protección de datos Aquí.
Kontakt WhatsApp