Luxuriöse Neubauvilla mit atemberaubendem Design und Gärten, Terrassen und einem Infinity-Pool mit Meerblick in Teulada-Moraira, Alicante, Costa Blanca.

3.750.000€

Charakteristik

Schlafzimmer: 3
Das Badezimmer: 5
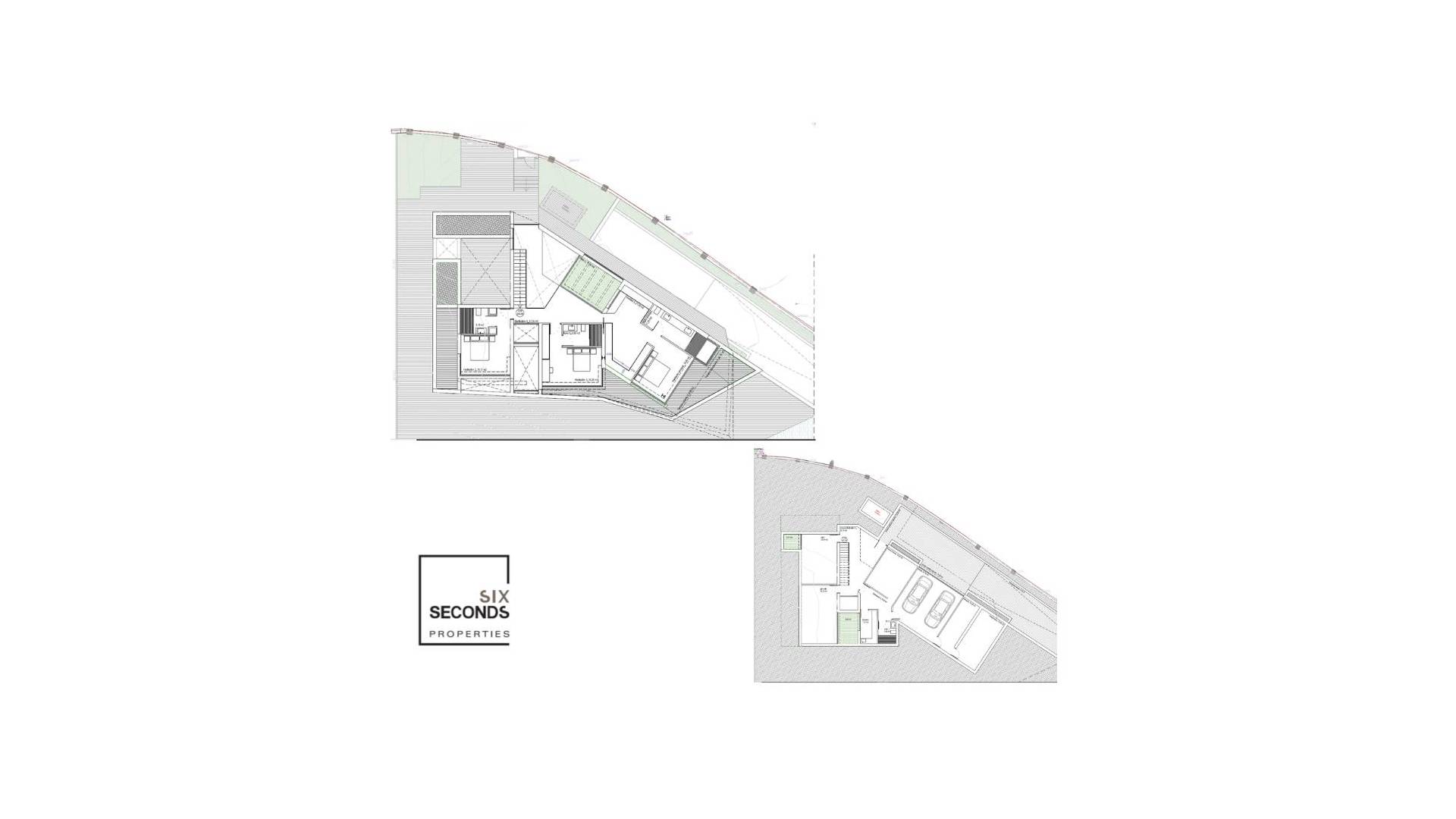
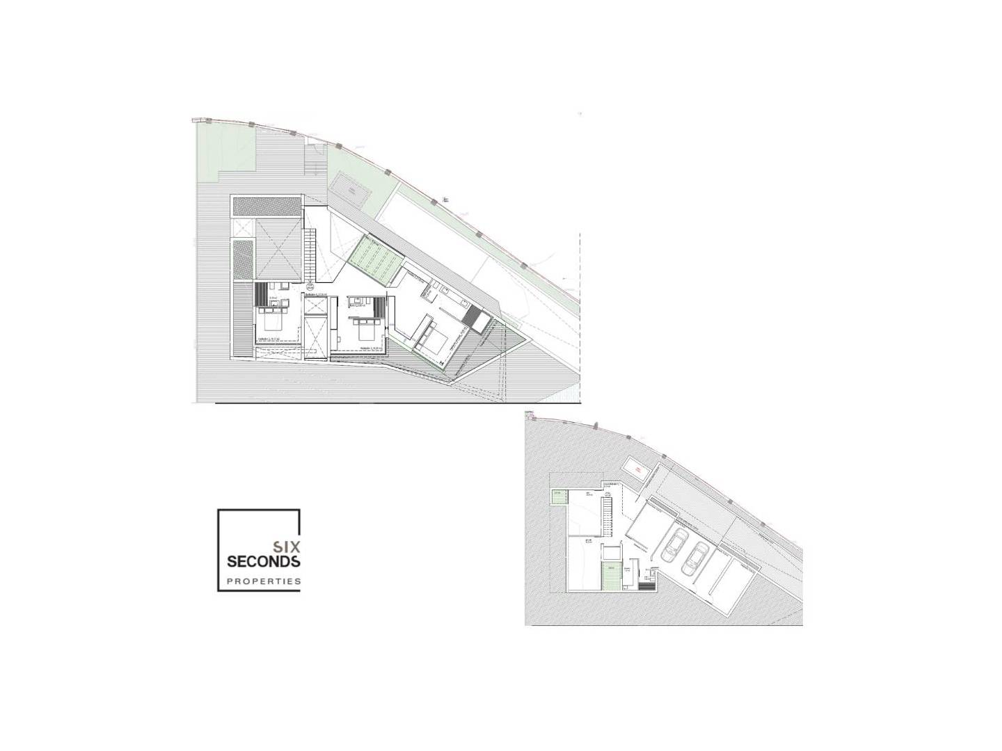
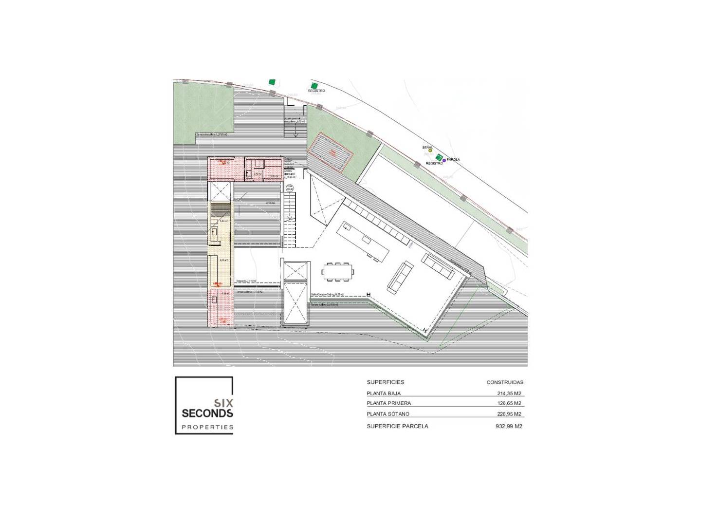
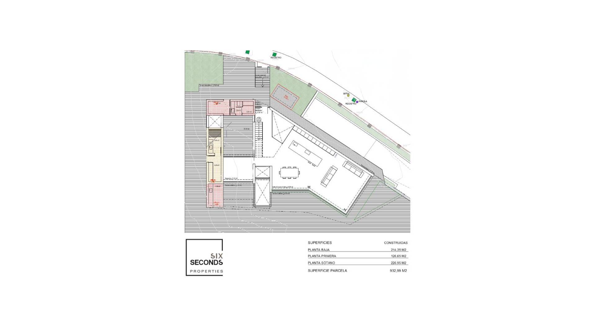
Gebaut: 568m2
Grundstück: 933m2
Schwimmbad: Ja
Garage: Private Garage
Geschenk 22500 €
Parkmöglichkeiten: 2
Kochst du: Open
: 07
Einbauschränke: 3
Orientierung: Südosten
Entfernung zum Strand: 4 Km.
Entfernung zum Flughafen: 58 Minss.
Entfernung zur Freizeit: 5 Km.
Entfernung zum Golfplatz: 3,6 Km.
Garage
Aufzug
Garten
Lagerraum
Wäsche
Terrasse
07 Abschlussprüfung 2. Semester 2025
Nennleistung
NennleistungIn Bearbeitung

Beschreibung

Entdecken Sie die zeitlose Eleganz dieser luxuriösen Villa, einer exklusiven Residenz in der prestigeträchtigen Gegend Coma de los Frailes in Teulada-Moraira , nördlich der wunderschönen Costa Blanca . Dieses Anwesen verkörpert die perfekte Verbindung von zeitgenössischer Architektur und mediterranem Charme. Mit seiner Ausrichtung nach Südosten und dem Panoramablick auf das Meer ist es ein wahres Juwel in einer der begehrtesten Lagen an der Küste von Alicante.

Es erstreckt sich über drei Etagen und bietet ein geräumiges und funktionales Design mit einer bebauten Fläche von 568 m² auf einem Grundstück von 933 m² . Das Erdgeschoss beherbergt einen offenen Wohn- und Essbereich , eine moderne Küche, die komplett mit hochmodernen Geräten ausgestattet ist , und einen Innenhof, der das Haus in natürliches Licht taucht.

Das Anwesen verfügt über 3 geräumige Schlafzimmer und 5 Designerbäder , darunter eine Master-Suite mit privater Terrasse und spektakulärem Blick auf das Mittelmeer. Es gibt außerdem einen privaten Kinoraum , ein voll ausgestattetes Fitnessstudio , einen Infinity-Pool mit Meerblick und einen Aufzug , der alle Etagen bedient. Es gibt außerdem ein Büro, das sich ideal für Telearbeit eignet , eine Waschküche , große Mehrzweckräume und eine Garage für zwei Fahrzeuge .

Draußen bietet die Villa eine ruhige und raffinierte Umgebung mit angelegten Gärten , offenen Terrassen , einer Sommerküche und Räumen, die zum Entspannen und zum Licht des mediterranen Klimas einladen. Jedes Detail wurde sorgfältig ausgewählt, um Komfort, Privatsphäre und ein unvergleichliches Wohnerlebnis zu garantieren.

Eine einmalige Gelegenheit für alle, die eine Luxusresidenz suchen , die avantgardistische Architektur , hochwertige Materialien und eine privilegierte Lage an der Costa Blanca vereint.

Entdecken Sie das Mittelmeer in seiner ganzen Pracht.

Klima:  

Das Klima der Costa Blanca, das oft als das beste Europas gilt, fördert einen gesunden und angenehmen Lebensstil im Freien. Es zeichnet sich durch zahlreiche Sport- und Freizeiteinrichtungen sowie kosmopolitische und dynamische Resorts aus, die sich durch ihre hochwertigen Dienstleistungen auszeichnen, von denen einige exklusiv sind und als wahrer Luxus gelten. Alle diese Dienstleistungen richten sich an eine anspruchsvolle Kundschaft, die Qualität und Nähe sucht.

Die Costa Blanca genießt mehr als 300 Sonnentage im Jahr. Ein Paradies mit hervorragenden Verbindungen nach ganz Europa. Der Flughafen Alicante-Elche verfügt über moderne Einrichtungen und ist von überall in der Provinz leicht erreichbar .  

Um:  

Die Costa Blanca zieht weiterhin Menschen aus ganz Europa und darüber hinaus an.   Bereits   bietet eine einzigartige Lebensqualität in einer herrlichen mediterranen Umgebung, umgeben von Bergen und üppiger Vegetation.   Zusätzlich zu den Golfplätzen und Yachthäfen, die Sie entlang der Küste genießen können, bietet die Gegend auch die Möglichkeit zum Skifahren in der umliegenden Sierra   Schneefall   ,   Javalambre oder   Valdelinares   ,   ein Paradies für Wintersportler   mit herrlichen Naturlandschaften... Die Costa Blanca bietet einen besonders reichen Lebensstil, wo sich die schönsten Strände und Buchten des Mittelmeers mit einem Landesinneren voller Berge und Städte verbinden, die eine weltweit einzigartige Kultur und historische Denkmäler verbergen.  

Wir haben ein Geschenk für Sie:  

In unserer Immobilienagentur helfen wir Ihnen, Ihr neues Zuhause in das Zuhause Ihrer Träume zu verwandeln. Wir bieten Ihnen einen Geschenkgutschein im Wert von 22.500 € für den Kauf von Möbeln .   und einen technischen Besuch im Hausplanungsbüro , wo unser technisches Team Sie über die Möglichkeiten zur Verbesserung und Ausstattung Ihres Hauses berät.   Völlig kostenlos!!   

WICHTIG!!    

Denken Sie daran, dass unsere Dienstleistungen NIEMALS den Endpreis der Immobilie für unsere Kunden erhöhen . Unsere Branchenerfahrung macht uns zu Ihrem Verbündeten, einem vertrauenswürdigen Berater, der Ihnen bei der Auswahl des Hauses Ihrer Träume in der besten Nachbarschaft hilft und Sie über den Marktpreis der Immobilien, die Sie interessieren, deren Eigenschaften usw. informiert. Wesentliche und objektive Informationen für eine rundum zufriedenstellende Erfahrung.  

Eigenschaften von Six Seconds   (965059685)   Dies ist Teil einer   Gruppe von   Etablierte und spezialisierte Unternehmen, alle im Bereich Wohnbau tätig. Architektur, Innenarchitektur, Einrichtung und Beratung beim Kauf und Verkauf von Immobilien.   usw.   Dank dieser Ressourcen können wir unseren Kunden einzigartige und exklusive Dienstleistungen anbieten.  

Six Seconds Properties ist eine moderne Agentur, die auf neue Technologien und Marktchancen achtet. Deshalb sind wir auch Pioniere darin, Ihnen die Möglichkeit zu bieten, sichere und transparente Immobilientransaktionen in Kryptowährungen durchzuführen .


Ort

Blaupausen

Datenschutzerklärung

Wirtschaft

Diese hier angegebenen Informationen unterliegen Fehlern und sind nicht Bestandteil eines Vertrages. Das Angebot kann ohne vorherige Ankündigung geändert oder zurückgezogen werden. Die Preise beinhalten keine Einkaufskosten.

Berechnen Hypotheken
Geldwechsel
  • Pfund: 3.248.438 GBP
  • Schweizerfranken: 3.446.250 CHF
  • Chinesischen Yuan: 29.966.250 CNY
  • Dollar: 4.388.250 USD
  • Schwedische Krone: 40.708.125 SEK
  • Die norwegische Krone: 40.921.125 NOK
  • Checa-Krone: 91.372.500 CZK

Nach Informationen fragen

Responsable del tratamiento: Six Seconds Properties SL, Finalidad del tratamiento: Gestión y control de los servicios ofrecidos a través de la página Web de Servicios inmobiliarios, Envío de información a traves de newsletter y otros, Legitimación: Por consentimiento, Destinatarios: No se cederan los datos, salvo para elaborar contabilidad, Derechos de las personas interesadas: Acceder, rectificar y suprimir los datos, solicitar la portabilidad de los mismos, oponerse altratamiento y solicitar la limitación de éste, Procedencia de los datos: El Propio interesado, Información Adicional: Puede consultarse la información adicional y detallada sobre protección de datos Aquí.
Kontakt WhatsApp