Unabhängige Villa · Gebraucht Moraira · Alicante · Ref.: RE-18607

2.175.000€

Charakteristik

Schlafzimmer: 5
Das Badezimmer: 5
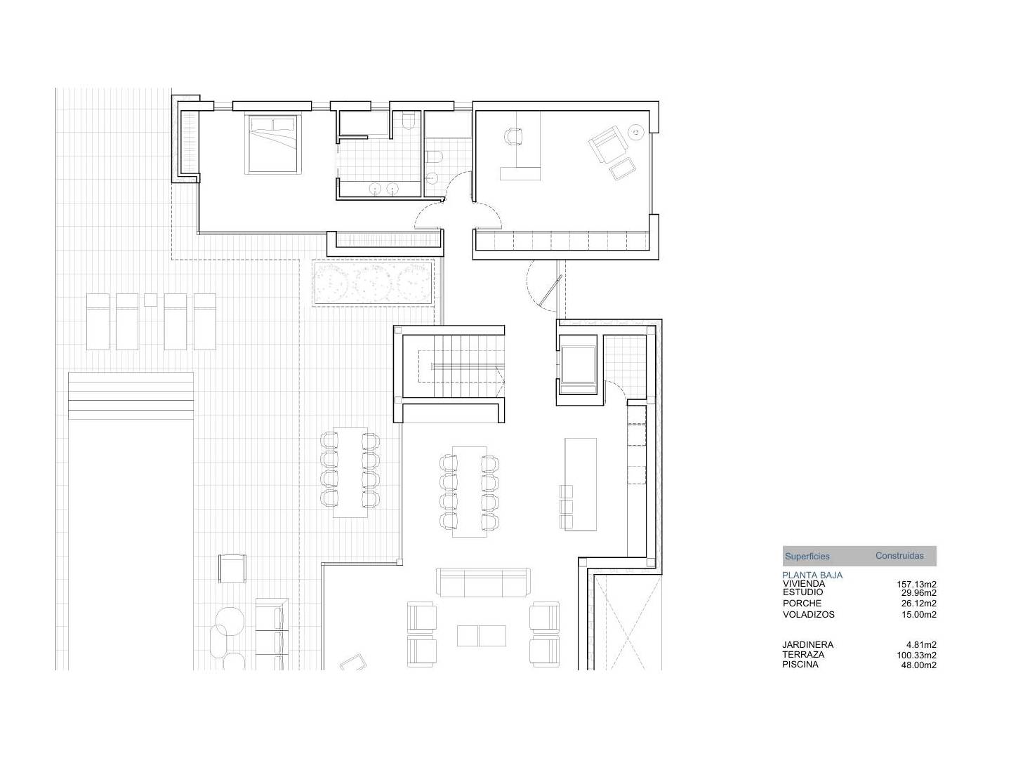
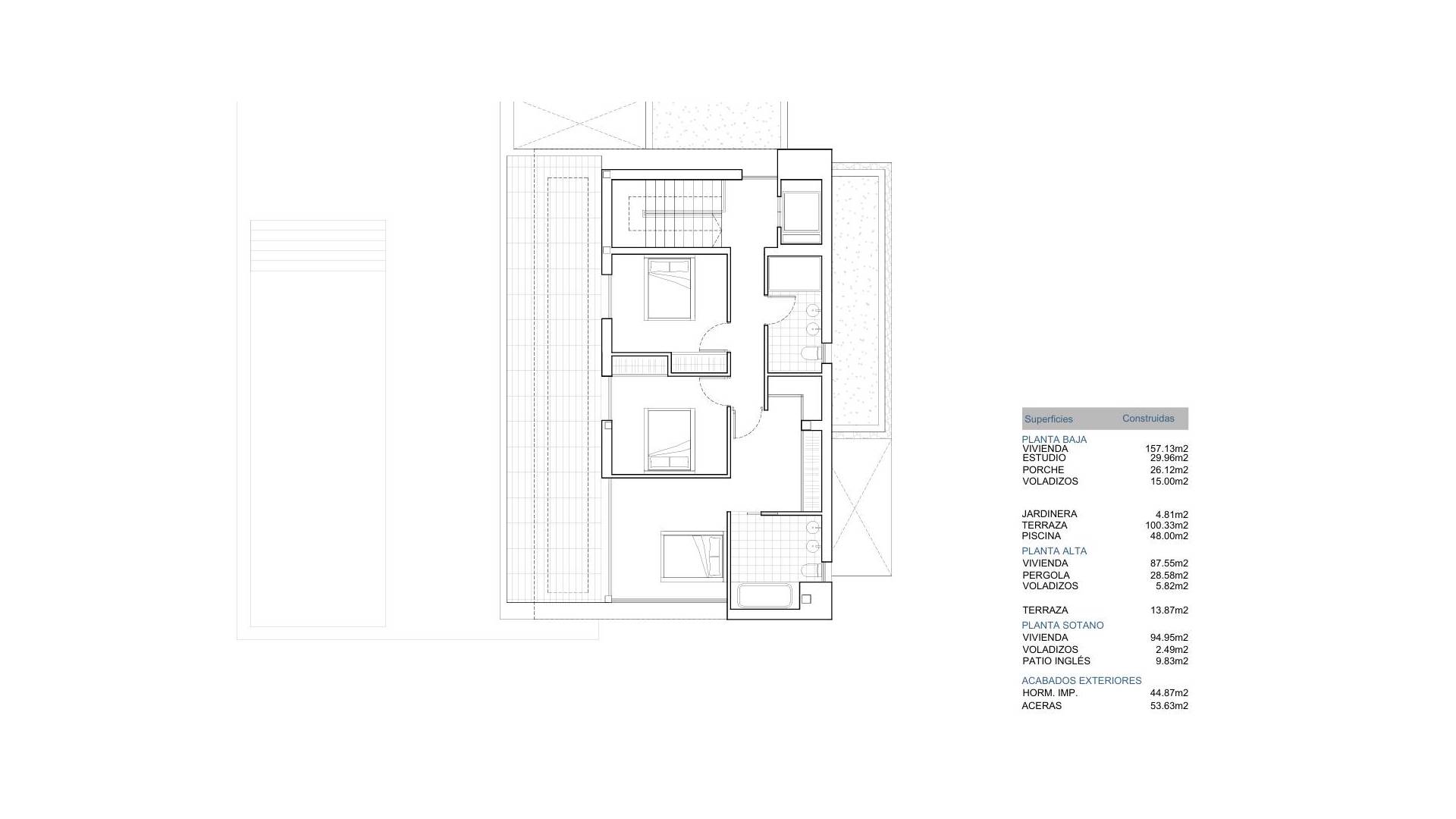
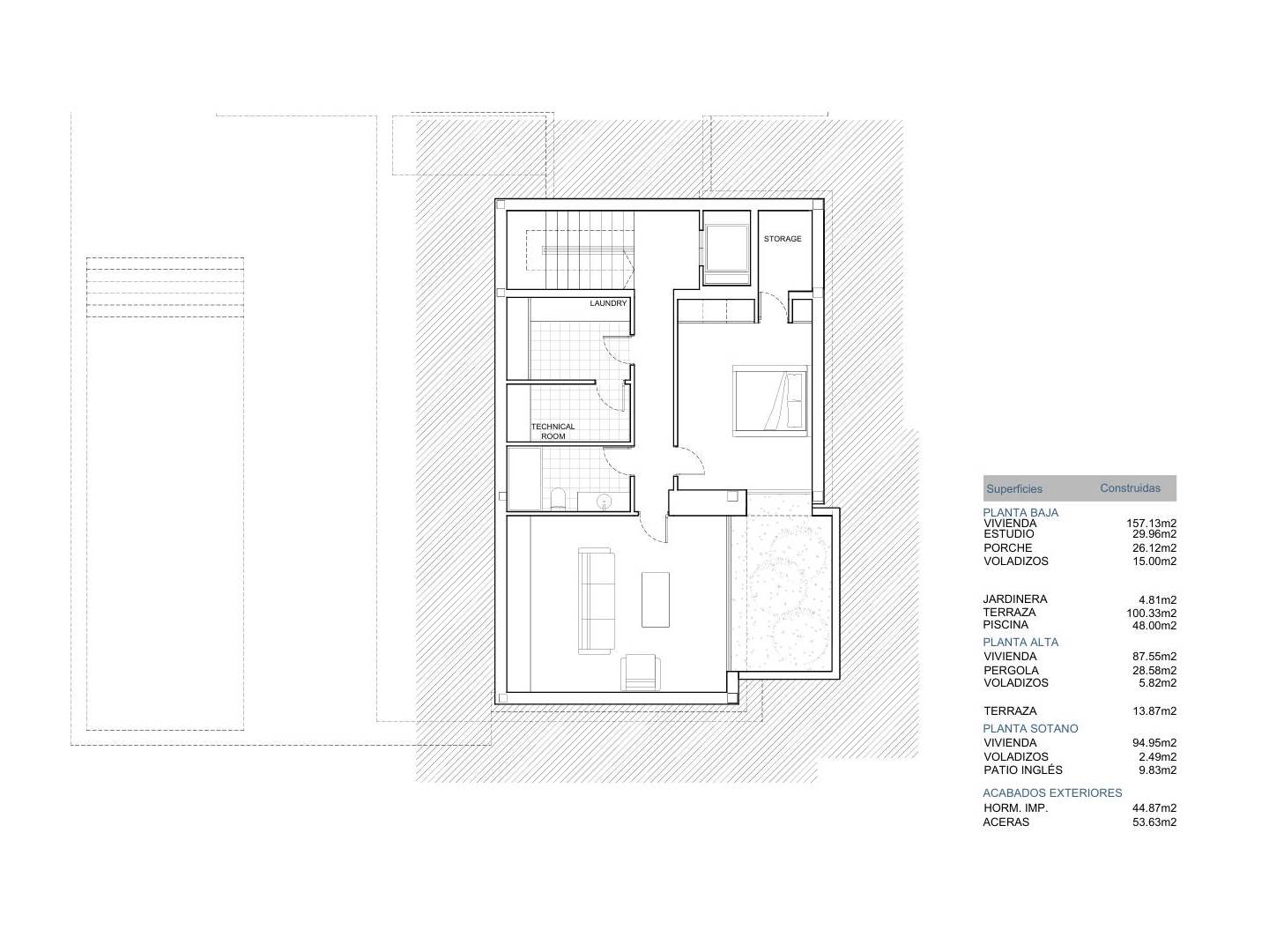
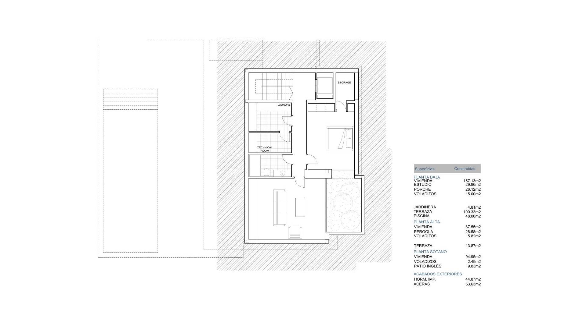
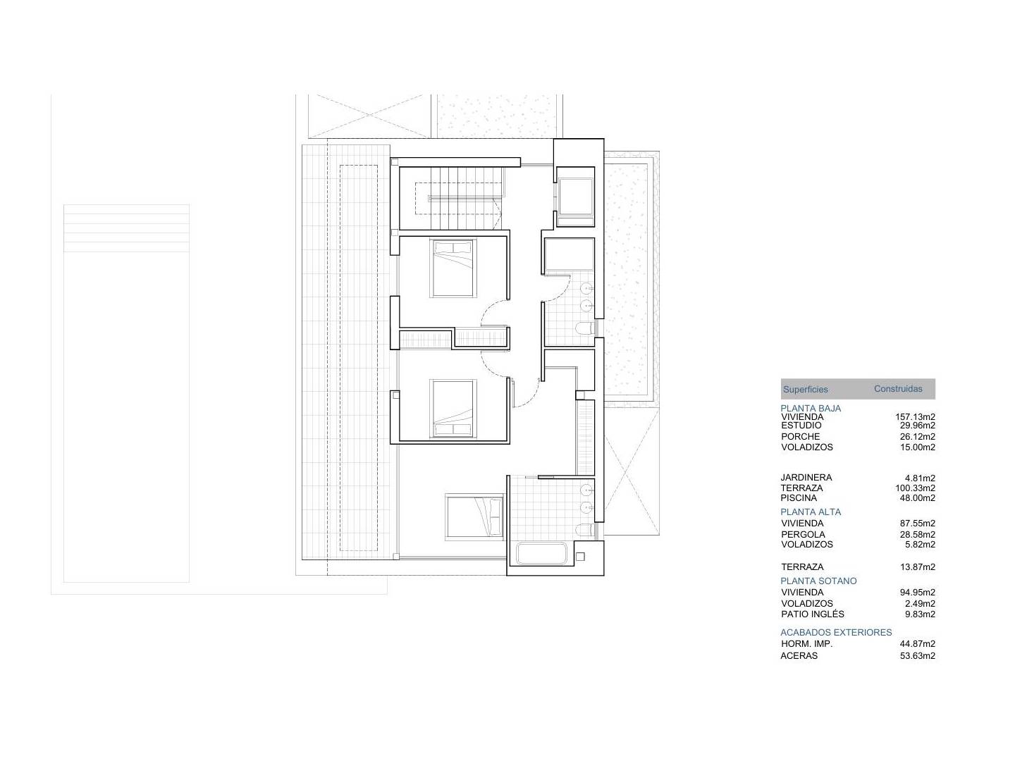
Gebaut: 395m2
Grundstück: 814m2
Schwimmbad: Ja
Garage
Garten
Lagerraum
Parken
Sicherheitstür
Wäscherei
Doppelverglasung
Offene Terrasse
Grillen
Außendusche
Eingezäuntes Grundstück
überdachte Terrasse
Baujahr: 2024
Klimaanlage auf Kanalbasis
Heizung elektrische Fußbodenheizung
Sommerküche
Nennleistung
NennleistungIn Bearbeitung

Beschreibung

Dieses charmante Projekt in Benifairó besteht aus einem zweistöckigen Haus mit modernem und funktionalem Design. Mit einer bebauten Gesamtfläche von 395,71 m² wurde der Raum sorgfältig aufgeteilt, um den Komfort und die Nutzung von natürlichem Licht zu maximieren. Das Erdgeschoss ist für die Gemeinschaftsbereiche mit großen Wohnbereichen, einem Esszimmer, einer Küche und einem Schlafzimmer vorgesehen, während im Obergeschoss die Schlafzimmer untergebracht werden, die Privatsphäre und privilegierte Aussicht bieten. Diese Immobilie zeichnet sich durch ihr harmonisches Design aus, ideal, um einen komfortablen und zeitgemäßen Lebensstil in einer ruhigen Umgebung zu genießen. Ein perfektes Zuhause zum Leben und Genießen!

Wirtschaft

Diese hier angegebenen Informationen unterliegen Fehlern und sind nicht Bestandteil eines Vertrages. Das Angebot kann ohne vorherige Ankündigung geändert oder zurückgezogen werden. Die Preise beinhalten keine Einkaufskosten.

Berechnen Hypotheken
Geldwechsel
  • Pfund: 1.884.094 GBP
  • Schweizerfranken: 1.998.825 CHF
  • Chinesischen Yuan: 17.380.425 CNY
  • Dollar: 2.545.185 USD
  • Schwedische Krone: 23.610.713 SEK
  • Die norwegische Krone: 23.734.253 NOK
  • Checa-Krone: 52.996.050 CZK

Nach Informationen fragen

Responsable del tratamiento: Six Seconds Properties SL, Finalidad del tratamiento: Gestión y control de los servicios ofrecidos a través de la página Web de Servicios inmobiliarios, Envío de información a traves de newsletter y otros, Legitimación: Por consentimiento, Destinatarios: No se cederan los datos, salvo para elaborar contabilidad, Derechos de las personas interesadas: Acceder, rectificar y suprimir los datos, solicitar la portabilidad de los mismos, oponerse altratamiento y solicitar la limitación de éste, Procedencia de los datos: El Propio interesado, Información Adicional: Puede consultarse la información adicional y detallada sobre protección de datos Aquí.
Kontakt WhatsApp